Objektbeschreibung
Preiswertes 78m² Neubau-Büro im Gewerbepark Inzersdorf!
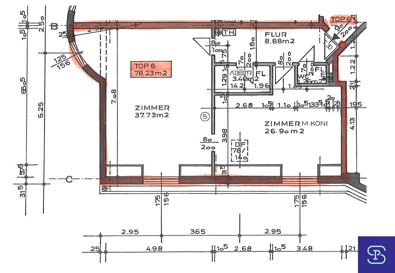
Diese sonnige und unmöblierte Büroeinheit befindet sich im 2. Stock (kein Lift) eines modernen Neubaus in der Slamastraße. Das Büro besteht aus 2 Büroraumen, kl. Küche oder Abstellraum, Vorraum und WC,.
Ausstattung: Moderner Neubau mit Gasetagenheizung, Kunststofffenster mit Mehrfachverglasung, WC,. Optional kann ein Autostellplatz zusätzlich angemietet werden.
Mehr lesen
Objekt ID: 3105175
Nutzfläche: 0 m2
Gesamtfläche: 78 m2
Ziimmer insgesamt: 2
Schlafzimmer: 2
Badezimmer: 1
Miete (netto) €: 600
USt €: 145.03
Nutzungsart: Gewerbe
Provisionspflichtig: ja
HWB: 24,50 kWh/(m²*a)
HWB Klasse: C
FGEE: 1.02
Energieausweis Art: Bedarf
Beziehbar: sofort
Etage: 1. DG / 2. Stock
WC: 1
Neubau
Etagenheizung
Gas
Teppich










