Objektbeschreibung
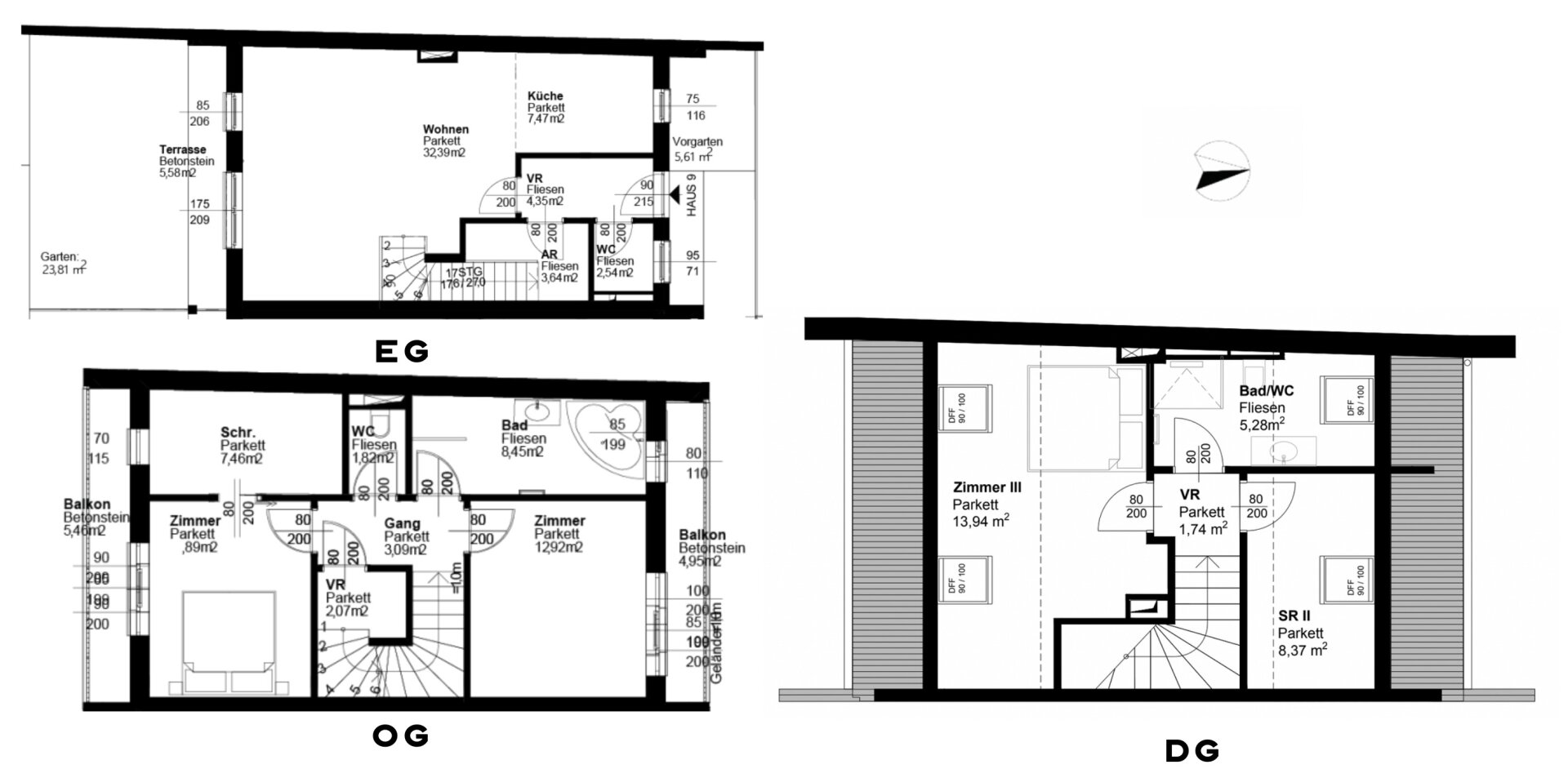
Dieses moderne Reihenhaus erstreckt sich über drei Etagen sowie einen privaten Garten und bietet eine durchdachte Raumaufteilung, hochwertige Bauweise und ein ruhiges Wohnumfeld im Grünen.
Im Erdgeschoss befindet sich der großzügige Wohnbereich mit direktem Zugang zur Terrasse und in den Garten. Die Küche ist optimal in den Wohnraum integriert. Zusätzlich
Mehr lesen
Objekt ID: 3111213
Preis: € 2.350
Nutzfläche: 128 m2
Gesamtfläche: 0 m2
Ziimmer insgesamt: 4
Schlafzimmer: 4
Badezimmer: 2
Miete (netto) €: 2350
Gesamtbelastung €: 2350
Nutzungsart: Wohnen
Provisionspflichtig: nein
Kaution: 3 Bruttomonatsmieten
HWB: 38,50 kWh/(m²*a)
HWB Klasse: B
FGEE: 0.75
E-Ausweis Gültig Bis:: 07.05.2030
Energieausweis Art: Bedarf
Anzahl Balkone: 2
Balkon/Terrassen - Fläche: 16
Beziehbar: nach Vereinbarung
WC: 3
Balkon
Neubau
Gäste-WC
Parkett
Bad mit Fenster
Fußbodenheizung
Freiplatz
Luft-Wärmepumpe
Massiv
Massivbauweise
Satteldach
Ähnliche Objekte
1. Monat mietfrei: Familienfreundliche Doppe...
€ 2.099
4
Schlafzimmer
1
Badezimmer
122 m2
Größe
Mai 8, 2026
ERSTBEZUG nach RENOVIERUNG! CHARMANTES ALTWI...
€ 6.990.50
8
Schlafzimmer
5
Badezimmer
350 m2
Größe
Mai 8, 2026
Exklusive Luxusvilla in absoluter Bestlage d...
€ 5.950
6
Schlafzimmer
4
Badezimmer
224 m2
Größe
Mai 7, 2026













