Objektbeschreibung
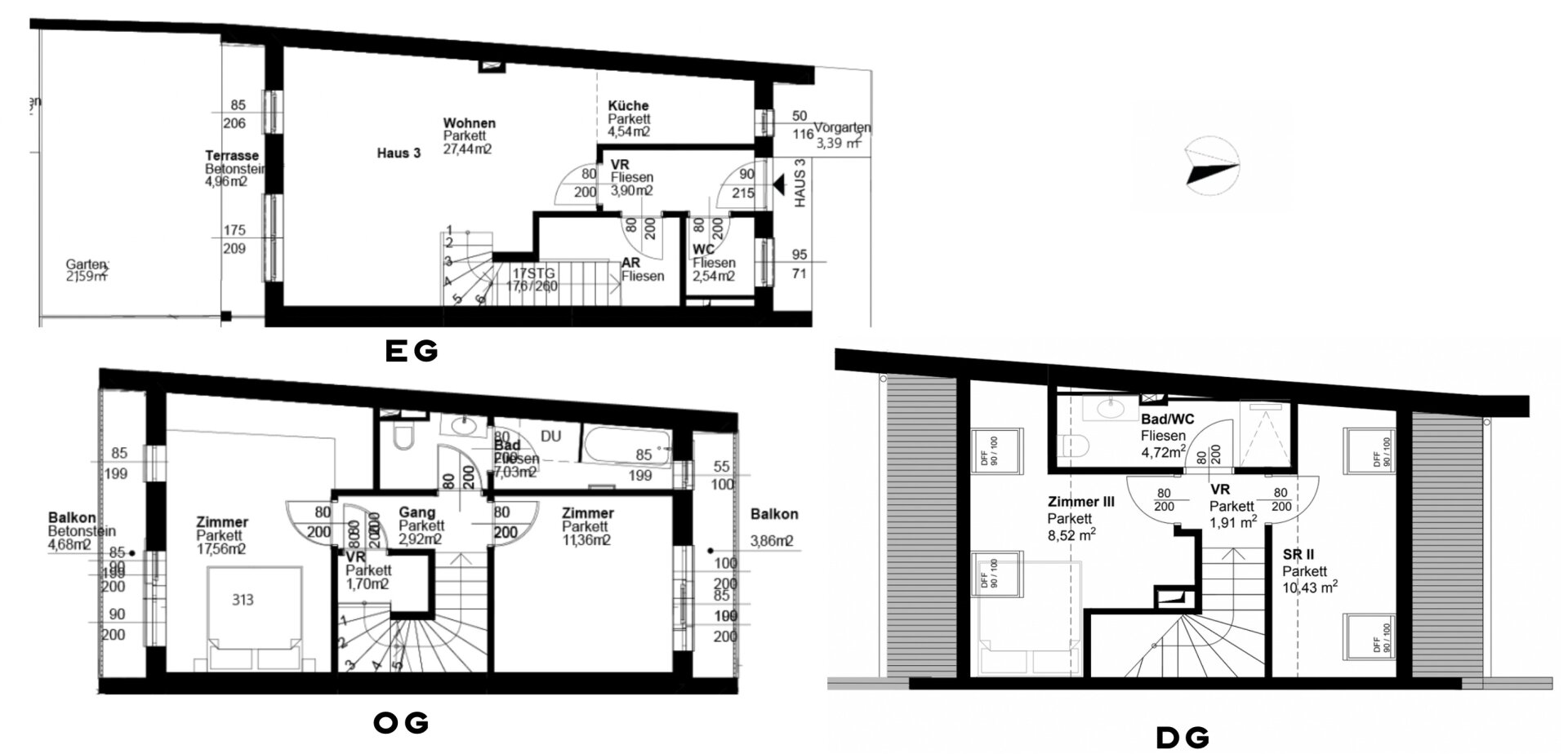
Dieses moderne Reihenhaus erstreckt sich über drei Etagen sowie einen privaten Garten und bietet eine durchdachte Raumaufteilung, hochwertige Bauweise und ein ruhiges Wohnumfeld im Grünen.
Im Erdgeschoss befindet sich der großzügige Wohnbereich mit direktem Zugang zur Terrasse und in den Garten. Die Küche ist optimal in den Wohnraum integriert. Zusätzlich
Mehr lesen
Objekt ID: 3111429
Preis: € 2.200
Nutzfläche: 106 m2
Gesamtfläche: 0 m2
Ziimmer insgesamt: 4
Schlafzimmer: 4
Badezimmer: 2
Miete (netto) €: 2200
Gesamtbelastung €: 2200
Nutzungsart: Wohnen
Provisionspflichtig: nein
Kaution: 3 Bruttomonatsmieten
HWB: 38,50 kWh/(m²*a)
HWB Klasse: B
FGEE: 0.75
E-Ausweis Gültig Bis:: 07.05.2030
Energieausweis Art: Bedarf
Anzahl Balkone: 2
Balkon/Terrassen - Fläche: 14
Beziehbar: Mai
WC: 3
Balkon
Neubau
Gäste-WC
Parkett
Bad mit Fenster
Fußbodenheizung
Freiplatz
Luft-Wärmepumpe
Massiv
Massivbauweise
Satteldach
Ähnliche Objekte
Wunderschöne 2 Zimmer Dachgeschoß-Wohnung im...
€ 1.100
2
Schlafzimmer
1
Badezimmer
70 m2
Größe
Mai 10, 2026
RUHIGE GARTENWOHNUNG // ARCHITEKTENHAUS // D...
€ 945
2
Schlafzimmer
1
Badezimmer
52 m2
Größe
Mai 10, 2026
Wunderschöne Wohnung mit Terrasse – U6...
€ 1.605.38
3
Schlafzimmer
1
Badezimmer
72 m2
Größe
Mai 10, 2026
















