Objektbeschreibung
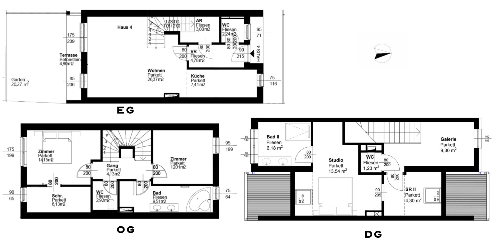
Dieses moderne Reihenhaus erstreckt sich über drei Etagen sowie einen privaten Garten und bietet eine durchdachte Raumaufteilung, hochwertige Bauweise und ein ruhiges Wohnumfeld im Grünen.
Im Erdgeschoss befindet sich der großzügige Wohnbereich mit direktem Zugang zur Terrasse und in den Garten. Die Küche ist optimal in den Wohnraum integriert. Zusätzlich
Mehr lesen
Objekt ID: 3111473
Preis: € 2.350
Nutzfläche: 124 m2
Gesamtfläche: 0 m2
Ziimmer insgesamt: 5
Schlafzimmer: 5
Badezimmer: 2
Miete (netto) €: 2350
Gesamtbelastung €: 2350
Nutzungsart: Wohnen
Provisionspflichtig: nein
Kaution: 3 Bruttomonatsmieten
HWB: 38,50 kWh/(m²*a)
HWB Klasse: B
FGEE: 0.75
E-Ausweis Gültig Bis:: 07.05.2030
Energieausweis Art: Bedarf
Balkon/Terrassen - Fläche: 6
Beziehbar: Mai
WC: 3
Neubau
Gäste-WC
Parkett
Bad mit Fenster
Fußbodenheizung
Freiplatz
Luft-Wärmepumpe
Massiv
Massivbauweise
Satteldach
Ähnliche Objekte
Wohnen in der Donaustadt: zwischen Natur und...
€ 2.178.15
4
Schlafzimmer
2
Badezimmer
103 m2
Größe
April 19, 2026
ERSTBEZUG | modernes Einfamilienhaus mit vie...
€ 2.900
5
Schlafzimmer
2
Badezimmer
153 m2
Größe
April 19, 2026
ERSTBEZUG | modernes Einfamilienhaus mit vie...
€ 2.900
5
Schlafzimmer
2
Badezimmer
153 m2
Größe
April 19, 2026

















