Objektbeschreibung
Die Wohnanlage besteht aus zwei Häusern mit jeweils sechs Wohnungen. Einen zusätzlichen Stellplatz kann bei Bedarf hinzugekauft werden.
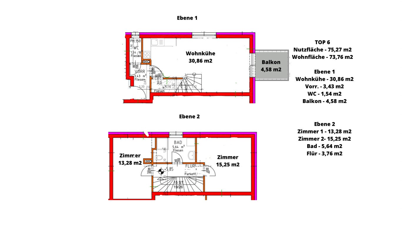
Die Maisonette-Wohnung erstreckt sich über zwei Ebenen und umfasst drei Zimmer. Auf der ersten Ebene befinden sich eine offene Wohnküche mit Zugang zu einem Balkon sowie ein Gäste-WC. Eine elegante Holztreppe führt
Mehr lesen
Objekt ID: 3111742
Preis: € 318.000
Nutzfläche: 74 m2
Gesamtfläche: 0 m2
Ziimmer insgesamt: 3
Schlafzimmer: 3
Badezimmer: 1
Nutzungsart: Wohnen
Provisionspflichtig: ja
Provision: 3% des Kaufpreises zzgl. 20% USt.
HWB: 33,47 kWh/(m²*a)
HWB Klasse: B
FGEE: 0.85
Energieausweis Art: Bedarf
Anzahl Balkone: 1
Balkon/Terrassen - Fläche: 4
Beziehbar: sofort
WC: 2
Balkon
Neubau
Parkett
Bad mit Fenster
Fußbodenheizung
offene Küche
Offene Küche
Freiplatz
Fernwärme
Ähnliche Objekte
***Provisionsfreie-2-Zimmer-Altbauwohnung in...
€ 205.000
2
Schlafzimmer
1
Badezimmer
54 m2
Größe
März 31, 2026
NEUJAHRSAKTION BIS 31.03.2026 – PREISE...
€ 268.200
2
Schlafzimmer
1
Badezimmer
53 m2
Größe
März 31, 2026
NEUJAHRSAKTION BIS 31.03.2026 – PREISE...
€ 272.800
2
Schlafzimmer
1
Badezimmer
45 m2
Größe
März 31, 2026

















