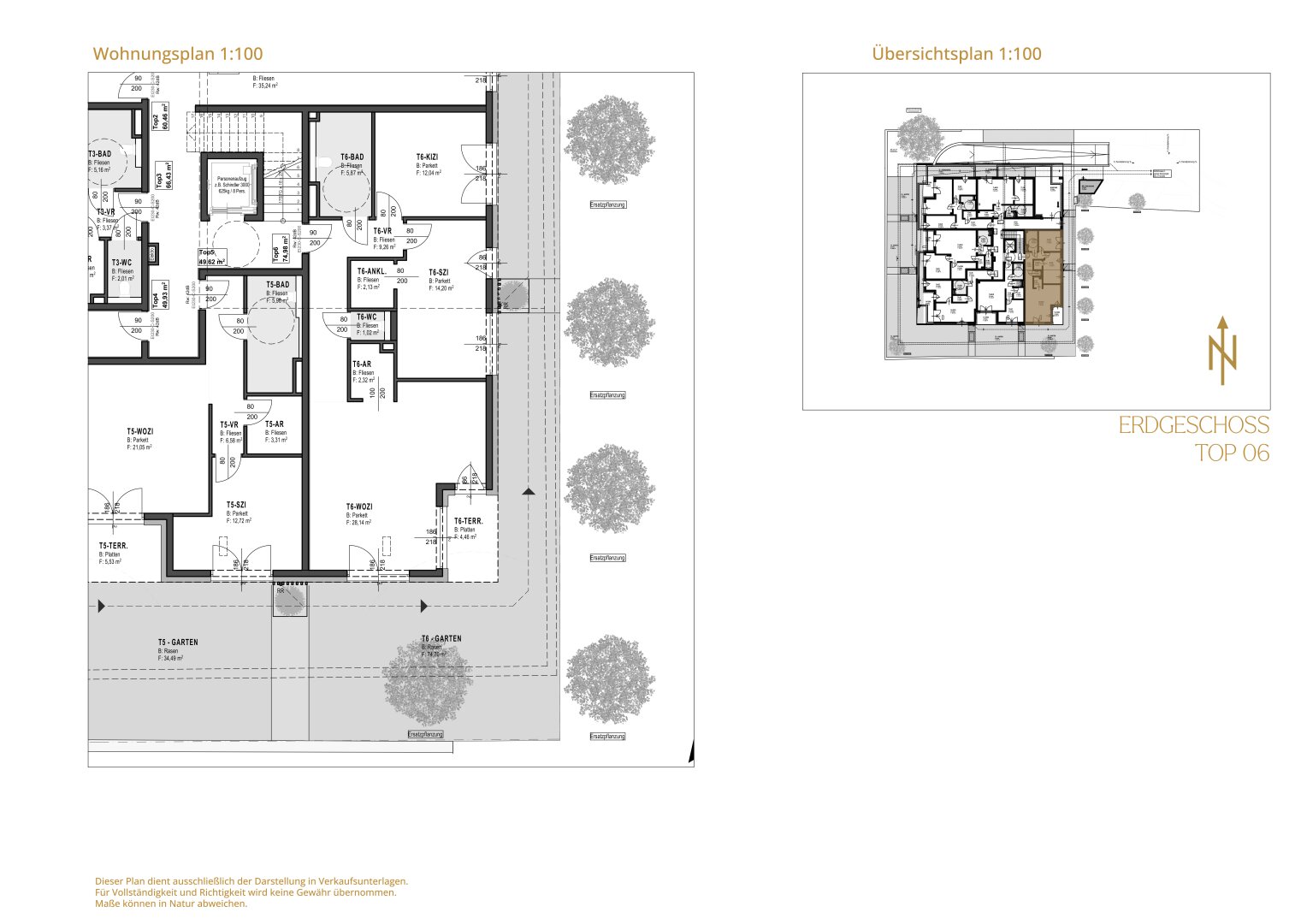
Objektbeschreibung
STADTGARTEN
Neue 3-Zimmer-Gartenwohnung mit Erstbezug in zentraler Stadtlage
Diese stilvolle Gartenwohnung befindet sich in einem modernen Neubau und überzeugt durch hochwertige Ausstattung, durchdachte Grundrisse und eine attraktive Süd-Ost-Ausrichtung. Bereits beim Betreten empfängt Sie ein einladender Eingangsbereich mit ausreichend Platz für eine Garderobe. Ein zentraler Gang trennt den privaten Schlafbereich
Mehr lesen
Objekt ID: 3120479
Preis: € 675.000
Nutzfläche: 75 m2
Gesamtfläche: 0 m2
Ziimmer insgesamt: 3
Schlafzimmer: 3
Badezimmer: 1
Miete/m2 €: 9006
Nutzungsart: Wohnen
Provisionspflichtig: nein
Provision: Provision bezahlt der Abgeber.
HWB: 33 kWh/(m²*a)
FGEE: 0.73
Energieausweis Art: Bedarf
Balkon/Terrassen - Fläche: 18
Beziehbar: sofort
Etage: EG
WC: 1
Abstellräume: 1
barrierefrei
Personenaufzug
Gäste-WC
Parkett
Dusche
Fußbodenheizung
Fahrradraum
Abstellraum
rollstuhlgerecht
Massiv
Massivbauweise
Wasch-/Trockenraum
Fernwärme
Tiefgarage
Flachdach

















