Objektbeschreibung
Lage/Infrastruktur:
liegt direkt am Wolfgangsee in St. Wolfgang – Gemeindegebiet St. Gilgen – und zählt zu den begehrtesten Wohnlagen im Salzkammergut. Der Ort bietet eine ausgezeichnete Kombination aus Natur, Lebensqualität und guter Infrastruktur.
Im Ortszentrum finden sich Nahversorger, Gastronomie, Ärzte, Bank und Schule. Die Anbindung erfolgt über die B158 mit
Mehr lesen
Objekt ID: 3124108
Preis: € 1.650.000
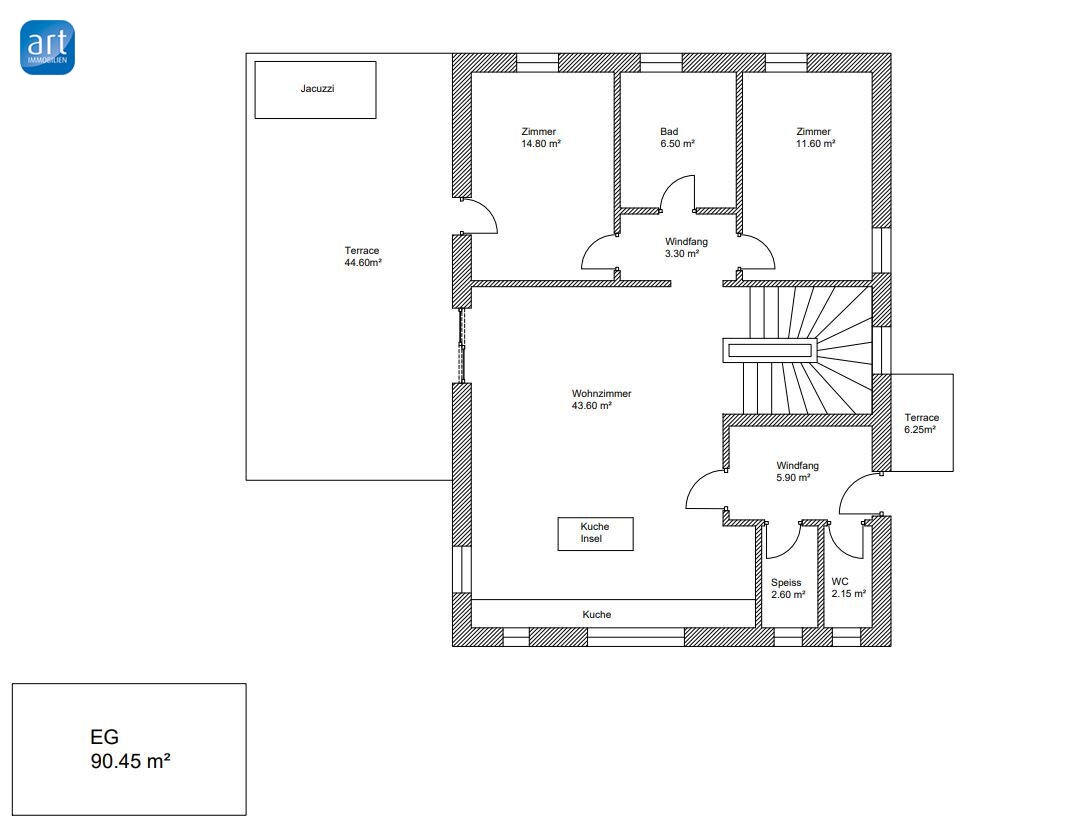
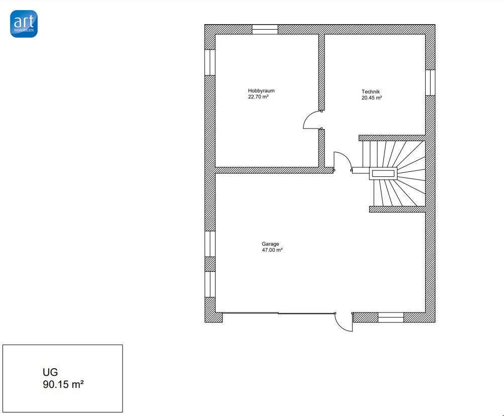
Nutzfläche: 180 m2
Gesamtfläche: 586 m2
Ziimmer insgesamt: 5
Schlafzimmer: 5
Badezimmer: 2
Nutzungsart: Wohnen
HWB: 33 kWh/(m²*a)
FGEE: 0.66
Energieausweis Art: Bedarf
Anzahl Balkone: 1
Balkon/Terrassen - Fläche: 58
Beziehbar: 3 bis 4 Monate
Balkon
Neubau
Einbauküche
Parkett
Fußbodenheizung
offene Küche
Offene Küche
Freiplatz
Luft-Wärmepumpe
Massiv
Massivbauweise
Satteldach










