Objektbeschreibung
D A S P R O J E K T
In bester und ruhiger Döblinger Wohnlage befindet sich dieses moderne und hochwertige Neubauprojekt, welches gerade errichtet wird und bis Ende 2026 fertiggestellt sein wird.
Es entstehen nur 7 exklusive Eigentumswohnungen zwischen rd. 41m² und 162m² (2-4 Zimmer) und ein Townhouse
Mehr lesen
Objekt ID: 3130118
Preis: € 2.593.000
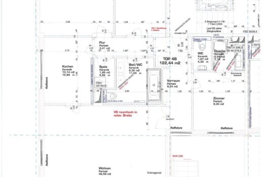
Nutzfläche: 162 m2
Gesamtfläche: 228 m2
Ziimmer insgesamt: 4
Schlafzimmer: 4
Badezimmer: 2
Miete/m2 €: 11351.9
Nutzungsart: Wohnen
Provisionspflichtig: ja
Provision: 93.348,00 € inkl. 20% USt.
HWB: 33,70 kWh/(m²*a)
HWB Klasse: B
FGEE: 0.74
E-Ausweis Gültig Bis:: 16.09.2031
Energieausweis Art: Bedarf
Anzahl Balkone: 1
Balkon/Terrassen - Fläche: 66
Beziehbar: Ende 2026
Etage: Dachgeschoss
WC: 2
Abstellräume: 1
Balkon
barrierefrei
Neubau
vollerschlossen
Ähnliche Objekte
Stilvolle Altbau-Erstwohnung in ruhiger Seit...
€ 675.000
2
Schlafzimmer
1
Badezimmer
77 m2
Größe
April 13, 2026
EXCLUSIVES WOHNEN – BELLEVUESTRASSE MI...
€ 1.190.000
4
Schlafzimmer
2
Badezimmer
122 m2
Größe
April 13, 2026


















