Erweiterte Suche
Suchagent aktivieren
Exklusive Anzeigen

Malinska – Doppelhaushälfte mit Meerblick!

€ 620.000,00

,

4 Zimmer
zu Favoriten hinzufügen
teilen
Suchergebnisse

Objektbeschreibung

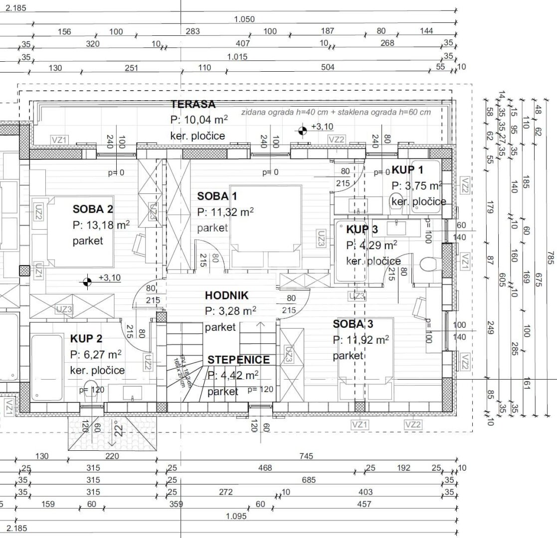
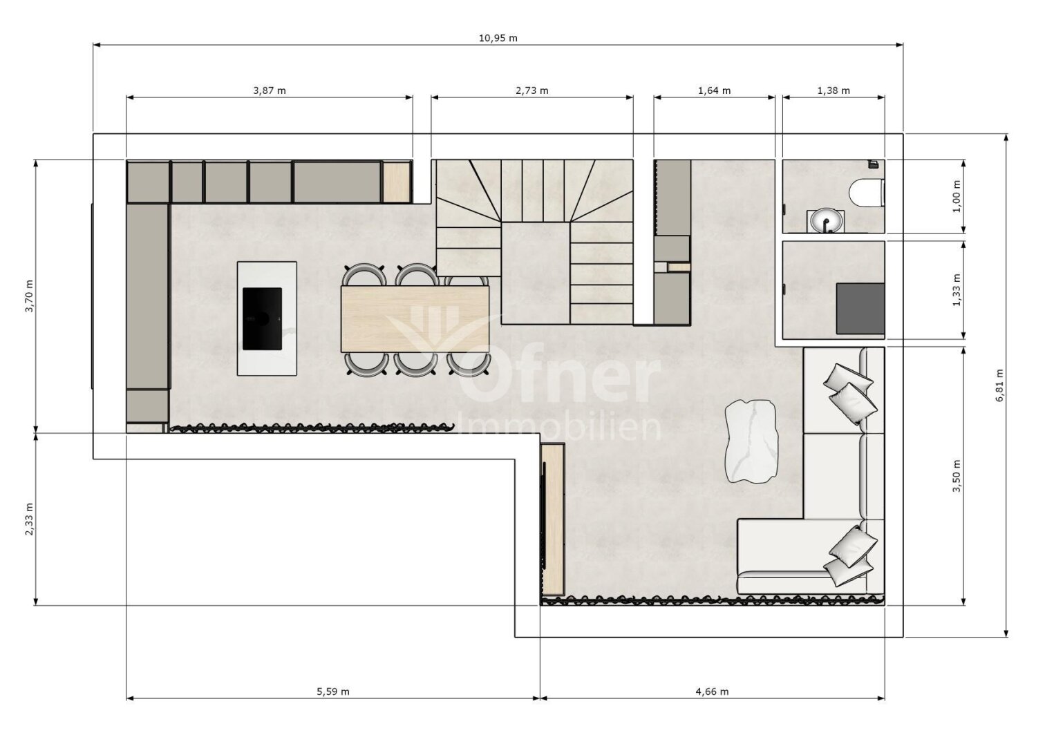
Doppelhaushälfte in einem Neubau mit Pool und Garten zu verkaufen – Region Malinska

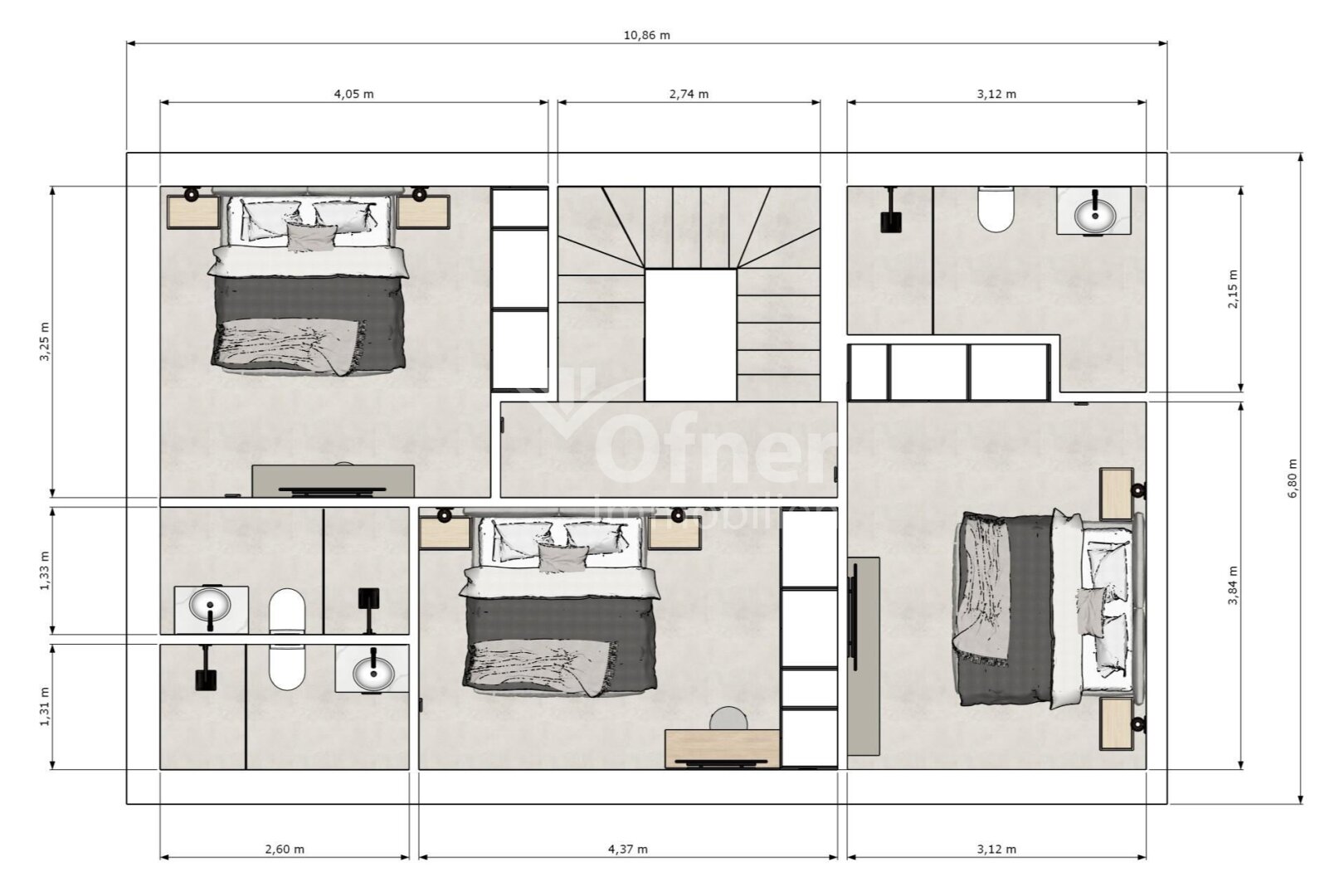
Das Haus mit einer Wohnfläche von 130 m² erstreckt sich über Erdgeschoss und Obergeschoss. Im Erdgeschoss befinden sich Eingangsbereich, Gäste-WC, Abstellraum, Wohnzimmer mit offener Küche und Essbereich sowie eine große überdachte Terrasse. Das Obergeschoss bietet einen Flur,
Mehr lesen

Bezirk:
PLZ: 51511
Land: Croatia
Objekt ID: 3131522
Preis: € 620.000
Nutzfläche: 0 m2
Gesamtfläche: 200 m2
Ziimmer insgesamt: 4
Schlafzimmer: 4
Badezimmer: 3
Nutzungsart: Anlage
Provisionspflichtig: ja
Provision: 3% des Kaufpreises zzgl. 20% USt.
WC: 1
als Ferienimmobilie nutzbar

Ähnliche Objekte

vergleichen
47tNrc6FnbRUP0orjIIS15

Malinska – Neubau mit Schwimmbad und Garten

€ 650.000
4
Schlafzimmer
3
Badezimmer
April 9, 2026
vergleichen
1707240116 img 3454 1

Haus Sveti Anton, Malinska-Dubašnica, 577,95...

€ 1
13
Schlafzimmer
5
Badezimmer
März 24, 2026
vergleichen
1716651671 2

Insel Krk, Malinska, wunderschöne Villa mit ...

€ 1.620.000
7
Schlafzimmer
4
Badezimmer
März 24, 2026

Vergleichen