Objektbeschreibung
EXKLUSIVES WOHNEN MIT WEITBLICK UND MEHRWERT
Am Rande von Dornbach, dem exklusiven und charmanten Stadtteil am westlichen Stadtrand von Wien, steht ein einzigartiges Neubauprojekt kurz vor der Fertigstellung. Genießen Sie eine urbane Oase mit perfekter Infrastruktur und Verkehrsanbindung und die Nähe zu den schönsten Grünoasen Wiens mit all seinen Freizeitmöglichkeiten. Die
Mehr lesen
Objekt ID: 3148319
Preis: € 1.390.000
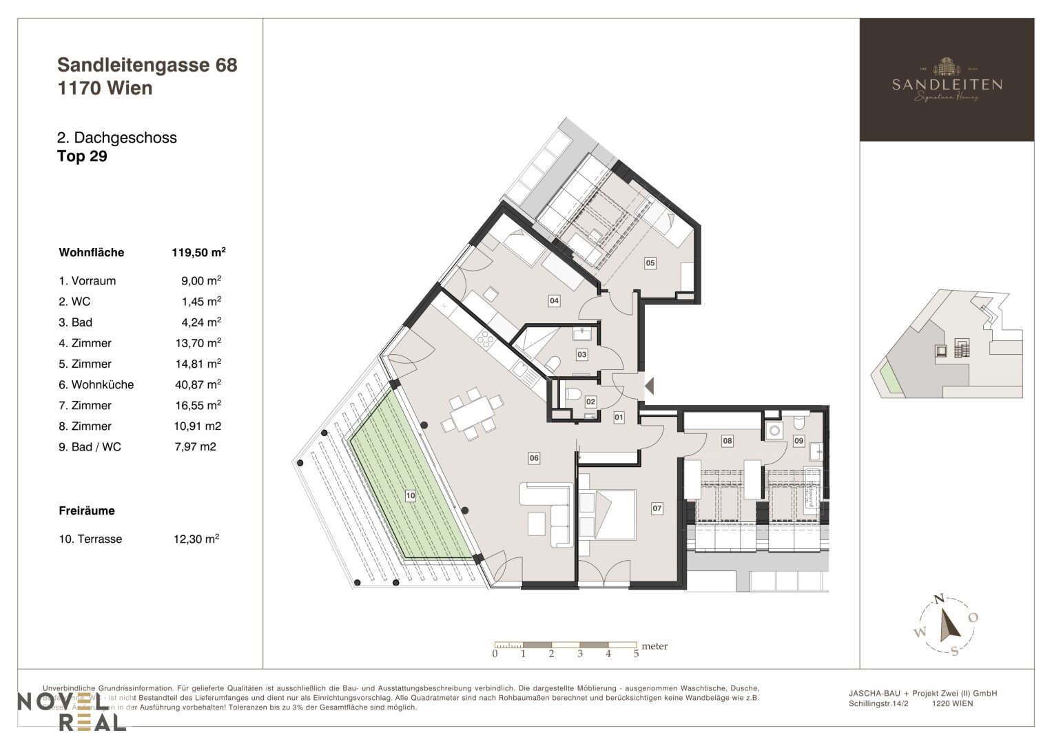
Nutzfläche: 120 m2
Gesamtfläche: 120 m2
Ziimmer insgesamt: 4
Schlafzimmer: 4
Badezimmer: 2
Nutzungsart: Anlage
HWB: 24,60 kWh/(m²*a)
HWB Klasse: A
FGEE: 0.72
E-Ausweis Gültig Bis:: 01.12.2035
Energieausweis Art: Bedarf
Balkon/Terrassen - Fläche: 12
Beziehbar: 1. Quartal 2027
Etage: 2. DG
WC: 3
barrierefrei
Neubau
Ähnliche Objekte
Familienwohnung mit Eigengarten I 4 Zimmer
€ 1.740.000
4
Schlafzimmer
2
Badezimmer
129 m2
Größe
April 14, 2026
Hacking I Neubauprojekt I 3 Zimmer mit Terra...
€ 965.000
3
Schlafzimmer
1
Badezimmer
76 m2
Größe
April 14, 2026


















