Objektbeschreibung
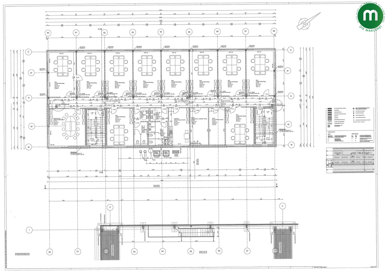
Zur Vermietung steht eine sehr gut ausgestattete Büroetage, die bei Bedarf um zusätzliche Lagerflächen erweitert werden kann. Die bereits möblierten Räumlichkeiten bieten ein stilvolles Arbeitsumfeld, sowie einen großzügigen Konferenzraum für bis zu 30 Personen. Eine moderne, vollausgestattete Küche und zeitgemäße Sanitäranlagen sind ebenfalls integriert. Weiters stehen Ihnen ein Server- sowie ein
Mehr lesen
Objekt ID: 3150169
Nutzfläche: 0 m2
Gesamtfläche: 467 m2
Ziimmer insgesamt: 15
Schlafzimmer: 15
Badezimmer: 0
Miete/m2 €: 0.03
Miete (netto) €: 12
USt €: 2.4
Nutzungsart: Gewerbe
Provisionspflichtig: ja
Kaution: 3 Bruttomonatsmieten
HWB: 43 kWh/(m²*a)
HWB Klasse: B
FGEE: 0.85
E-Ausweis Gültig Bis:: 25.09.2035
Energieausweis Art: Bedarf
Beziehbar: nach Vereinbarung
Etage: 2. Etage
WC: 4
Abstellräume: 1
vollmöbliert
Neubau
Einbauküche
Abstellraum
Freiplatz
Solar
DV-Verkabelung













