Objektbeschreibung
Traumhaftes Baugrundstück in Podersdorf am See – Ihr perfekter Platz für das Eigenheim am Wasser!
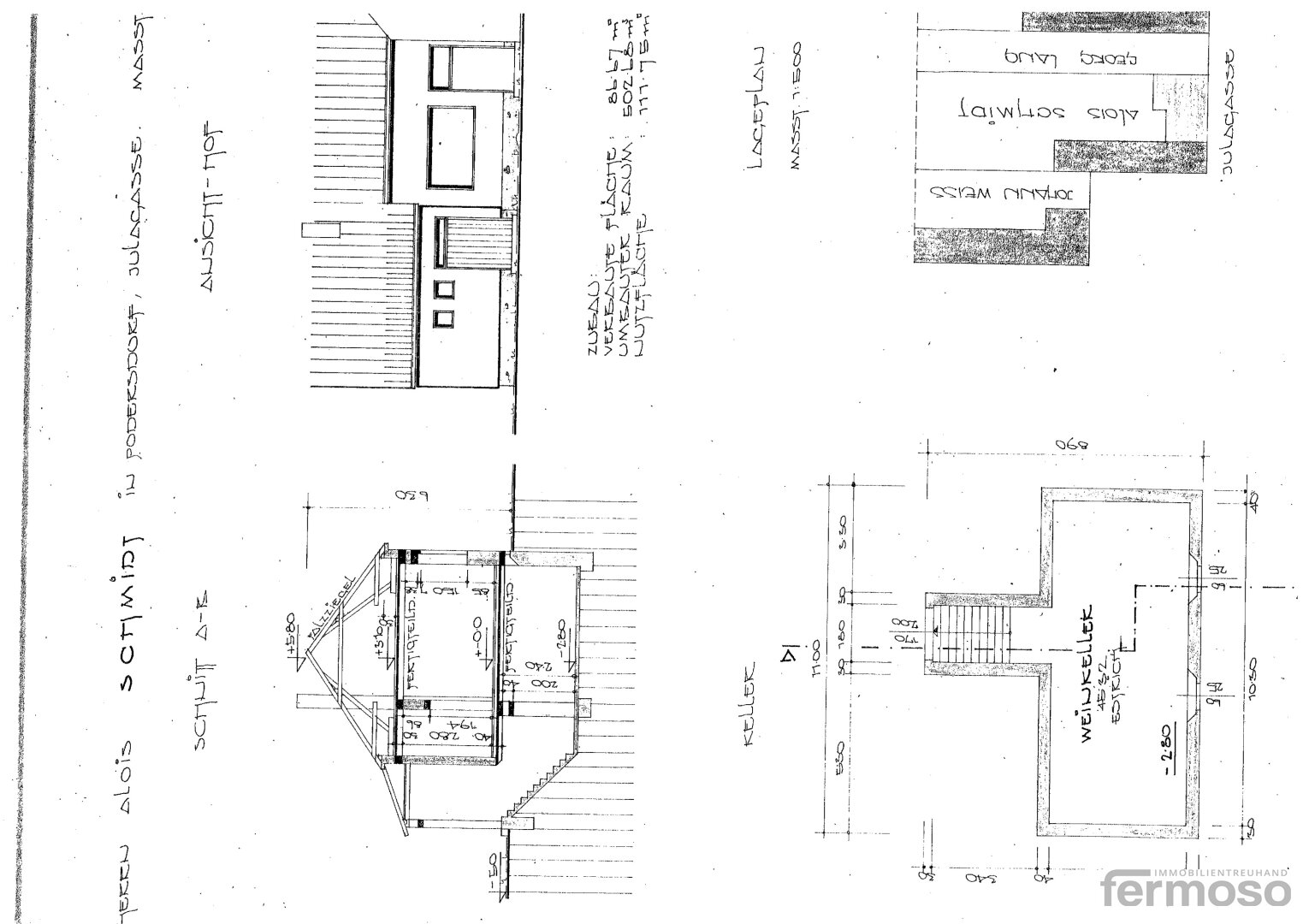
Auf dem Grundstück befindet sich noch ein altes Bauernhaus, benutzbar aber schon stark sanierungsbedürftig mit den Nebengebäuden, Kerngebiet Bauland, bebaubar zu 70% laut Verordnung.
Sie suchen einen idyllischen Ort, um Ihren Lebenstraum vom Eigenheim zu
Mehr lesen
Dokumente
Objekt ID: 3150961
Preis: € 349.000
Nutzfläche: 0 m2
Gesamtfläche: 850 m2
Ziimmer insgesamt: 0
Schlafzimmer: 0
Badezimmer: 0
Miete/m2 €: 410.59
Nutzungsart: Wohnen
Provisionspflichtig: ja
Provision: 3% des Kaufpreises zzgl. 20% USt.
HWB: 387,60 kWh/(m²*a)
HWB Klasse: G
Energieausweis Art: Bedarf













