Objektbeschreibung
EXKLUSIVES WOHNEN MIT WEITBLICK UND MEHRWERT
Am Rande von Dornbach, dem exklusiven und charmanten Stadtteil am westlichen Stadtrand von Wien, steht ein einzigartiges Neubauprojekt kurz vor der Fertigstellung. Genießen Sie eine urbane Oase mit perfekter Infrastruktur und Verkehrsanbindung und die Nähe zu den schönsten Grünoasen Wiens mit all seinen Freizeitmöglichkeiten. Die
Mehr lesen
Objekt ID: 3152423
Preis: € 899.000
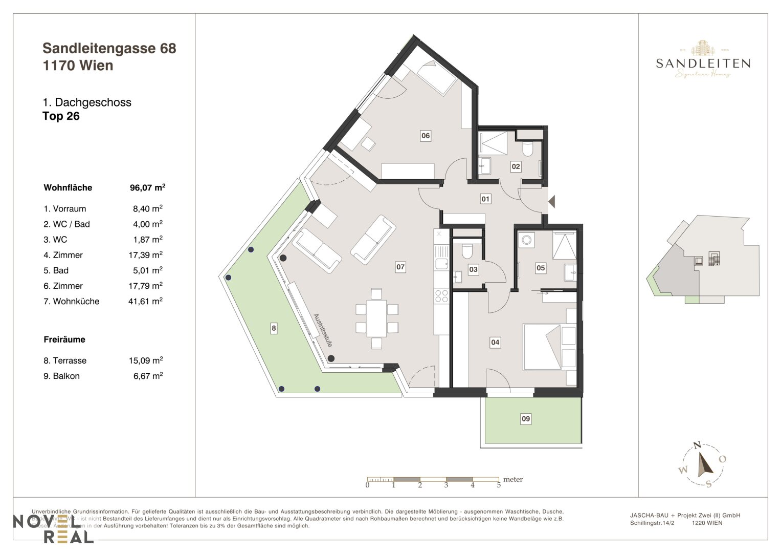
Nutzfläche: 96 m2
Gesamtfläche: 96 m2
Ziimmer insgesamt: 3
Schlafzimmer: 3
Badezimmer: 1
Nutzungsart: Anlage
Provisionspflichtig: ja
Provision: 3% des Kaufpreises zzgl. 20% USt.
HWB: 24,60 kWh/(m²*a)
HWB Klasse: A
FGEE: 0.72
E-Ausweis Gültig Bis:: 01.12.2035
Energieausweis Art: Bedarf
Anzahl Balkone: 1
Balkon/Terrassen - Fläche: 21
Beziehbar: 1. Quartal 2027
Etage: 1. DG
WC: 1
Abstellräume: 1
Balkon
barrierefrei
Neubau
Personenaufzug
Gäste-WC
Parkett
Badewanne
Fußbodenheizung
Kabel/Sat-TV
Fahrradraum
offene Küche
Abstellraum
Offene Küche
Garage
Klimaanlage
Luft-Wärmepumpe
Massiv
Massivbauweise
schlüsselfertig mit Keller
seniorengerecht
Kamera
Ähnliche Objekte
Grünlage I 6ter Stock I Gepflegter Neubau ...
€ 199.000
2
Schlafzimmer
1
Badezimmer
75 m2
Größe
April 14, 2026


















