Objektbeschreibung
Die Liegenschaft „ModernLiving9th“
Das Zinshaus wurde umfassend kernsaniert und befindet sich in einer der gefragtesten Gegenden Wiens, im 9. Bezirk Alsergrund. Es bietet hochwertig ausgestattete Wohnungen, die den Ansprüchen eines modernen urbanen Lebens gerecht werden. Jede Wohnung ist mit zeitgemäßen Annehmlichkeiten ausgestattet und bietet ein Höchstmaß an Komfort und
Mehr lesen
Objekt ID: 3153893
Preis: € 1.600.000
Nutzfläche: 125 m2
Gesamtfläche: 0 m2
Ziimmer insgesamt: 3
Schlafzimmer: 3
Badezimmer: 3
Nutzungsart: Anlage
Provisionspflichtig: ja
Provision: 3% des Kaufpreises zzgl. 20% USt.
HWB: 30,59 kWh/(m²*a)
HWB Klasse: B
FGEE: 0.73
E-Ausweis Gültig Bis:: 10.10.2028
Energieausweis Art: Bedarf
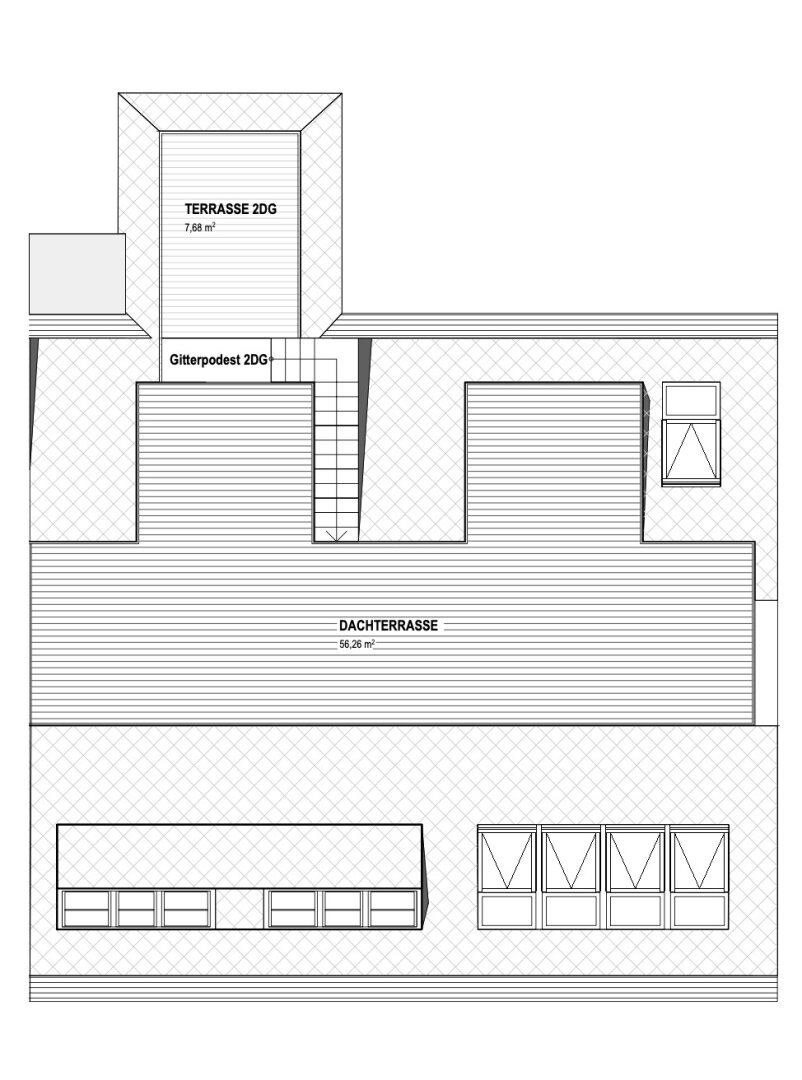
Anzahl Balkone: 1
Balkon/Terrassen - Fläche: 63
Etage: 2. DG / 1. & 2. DG
WC: 2
Abstellräume: 2
Balkon
Personenaufzug
Gäste-WC
Altbau
Gas
Parkett
Bad mit Fenster
Fußbodenheizung
Kabel/Sat-TV
offene Küche
Abstellraum
Offene Küche
Klimaanlage
vollerschlossen
schlüsselfertig mit Keller
Flachdach
















