Objektbeschreibung
LEO LIVING! ERSTBEZUG! NEUBAU! WÄRMEPUMPE! ELEKTRISCHE BESCHATTUNG! NÄHE U6!
Sonnige Neubauwohnung Nähe U6 Perfektastrasse!
Tauchen Sie ein in die exklusive Welt dieses herausragenden Projekts im begehrten 23. Bezirk! Hier wird Wohnen zu einem einzigartigen Erlebnis. Die besondere Lage dieses Neubaus setzt neue Maßstäbe für urbanes Wohnen und bietet nicht nur
Mehr lesen
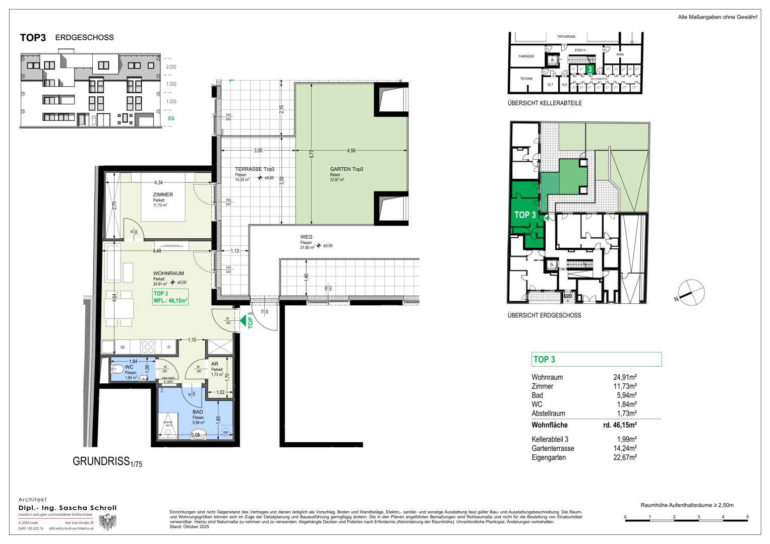
Objekt ID: 3165689
Preis: € 299.000
Nutzfläche: 46 m2
Gesamtfläche: 83 m2
Ziimmer insgesamt: 2
Schlafzimmer: 2
Badezimmer: 1
Nutzungsart: Wohnen
Provisionspflichtig: ja
Provision: 3% des Kaufpreises zzgl. 20% USt.
HWB: 40,50 kWh/(m²*a)
HWB Klasse: B
FGEE: 0.69
E-Ausweis Gültig Bis:: 29.06.2031
Energieausweis Art: Bedarf
Balkon/Terrassen - Fläche: 14
Beziehbar: sofort
Etage: EG / Erdgeschoss
WC: 1
Abstellräume: 1
barrierefrei
Neubau
WG-geeignet
Personenaufzug
Gäste-WC
Dusche
Fußbodenheizung
offene Küche
Abstellraum
Offene Küche
rollstuhlgerecht
Luft-Wärmepumpe
Massiv
Massivbauweise
Estrich
Gartennutzung
schlüsselfertig mit Keller
seniorengerecht
Räume veränderbar
Tiefgarage
Ähnliche Objekte
FRÜHLINGSAKTION BIS 30.04.2026 – PREIS...
€ 299.900
2
Schlafzimmer
1
Badezimmer
45 m2
Größe
April 14, 2026
FRÜHLINGSAKTION BIS 30.04.2026 – PREIS...
€ 323.700
2
Schlafzimmer
1
Badezimmer
53 m2
Größe
April 14, 2026
FRÜHLINGSAKTION BIS 30.04.2026 – PREIS...
€ 249.700
2
Schlafzimmer
1
Badezimmer
38 m2
Größe
April 14, 2026


















