Erweiterte Suche
Suchagent aktivieren
Exklusive Anzeigen

LEO LIVING! ERSTBEZUG! NEUBAU! WÄRMEPUMPE! ELEKTRISCHE BESCHATTUNG! NÄHE U6!

€ 269.000,00

,

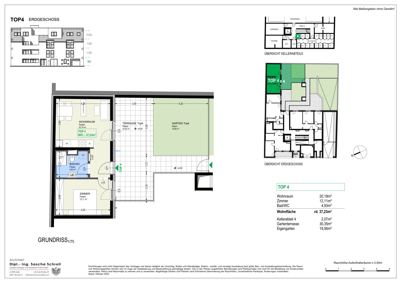
37.232 Zimmer
zu Favoriten hinzufügen
teilen
Suchergebnisse

Objektbeschreibung

LEO LIVING! ERSTBEZUG! NEUBAU! WÄRMEPUMPE! ELEKTRISCHE BESCHATTUNG! NÄHE U6! 

Sonnige Neubauwohnung Nähe U6 Perfektastrasse!

 

Tauchen Sie ein in die exklusive Welt dieses herausragenden Projekts im begehrten 23. Bezirk! Hier wird Wohnen zu einem einzigartigen Erlebnis. Die besondere Lage dieses Neubaus setzt neue Maßstäbe für urbanes Wohnen und bietet nicht nur
Mehr lesen

Ort:
Bezirk:
Bundesland:
PLZ: 1230
Land: Österreich
Objekt ID: 3165708
Preis: € 269.000
Nutzfläche: 37 m2
Gesamtfläche: 87 m2
Ziimmer insgesamt: 2
Schlafzimmer: 2
Badezimmer: 1
Nutzungsart: Wohnen
Provisionspflichtig: ja
Provision: 3% des Kaufpreises zzgl. 20% USt.
HWB: 40,50 kWh/(m²*a)
HWB Klasse: B
FGEE: 0.69
E-Ausweis Gültig Bis:: 29.06.2031
Energieausweis Art: Bedarf
Balkon/Terrassen - Fläche: 30
Beziehbar: sofort
Etage: EG / Erdgeschoss
WC: 1
barrierefrei
Neubau
WG-geeignet
Personenaufzug
Dusche
Fußbodenheizung
offene Küche
Offene Küche
rollstuhlgerecht
Luft-Wärmepumpe
Massiv
Massivbauweise
Estrich
Gartennutzung
schlüsselfertig mit Keller
seniorengerecht
Räume veränderbar
Tiefgarage

Ähnliche Objekte

vergleichen
PYMF8CrjcWxYafBcmvC4Q9

Anlegerhit oder Eigenheim | Sanierte 2-Zimme...

€ 299.000
2
Schlafzimmer
1
Badezimmer
60 m2
Größe
vergleichen
HK9NHXCYNG23YOYf8zX79

Hofseitige Gartenwohnung mit Terrasse I Grün...

€ 360.000
3
Schlafzimmer
1
Badezimmer
59 m2
Größe
Mai 10, 2026

RIMMO Prime Vermittlungs GmbH
Kevin Matyas

Kontaktaufnahme









    • Preisinformation
      Objektpreis269.000,00 €

    Vergleichen