Objektbeschreibung
LEO LIVING! ERSTBEZUG! NEUBAU! WÄRMEPUMPE! ELEKTRISCHE BESCHATTUNG! NÄHE U6!
Sonnige Neubauwohnung Nähe U6 Perfektastrasse!
Tauchen Sie ein in die exklusive Welt dieses herausragenden Projekts im begehrten 23. Bezirk! Hier wird Wohnen zu einem einzigartigen Erlebnis. Die besondere Lage dieses Neubaus setzt neue Maßstäbe für urbanes Wohnen und bietet nicht nur
Mehr lesen
Objekt ID: 3166491
Preis: € 295.000
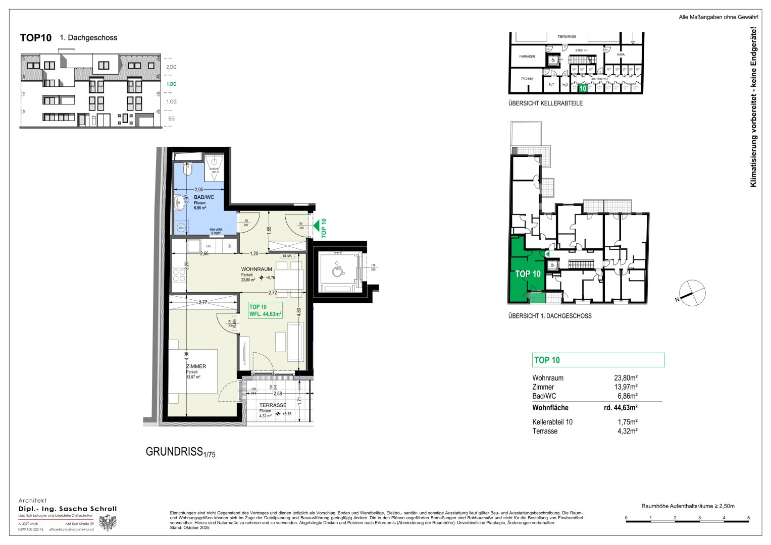
Nutzfläche: 45 m2
Gesamtfläche: 49 m2
Ziimmer insgesamt: 2
Schlafzimmer: 2
Badezimmer: 1
Nutzungsart: Wohnen
Provisionspflichtig: ja
Provision: 3% des Kaufpreises zzgl. 20% USt.
HWB: 40,50 kWh/(m²*a)
HWB Klasse: B
FGEE: 0.69
E-Ausweis Gültig Bis:: 29.06.2031
Energieausweis Art: Bedarf
Balkon/Terrassen - Fläche: 4
Beziehbar: sofort
Etage: 1. DG / 1. Dachgechoss
WC: 1
barrierefrei
Neubau
WG-geeignet
Personenaufzug
Dusche
Fußbodenheizung
offene Küche
Offene Küche
rollstuhlgerecht
Luft-Wärmepumpe
Massiv
Massivbauweise
Estrich
schlüsselfertig mit Keller
seniorengerecht
Räume veränderbar
Tiefgarage
Ähnliche Objekte
Erstbezug I Traumhafte Gartenwohnung Nähe La...
€ 885.000
2
Schlafzimmer
1
Badezimmer
67 m2
Größe
April 15, 2026
Traumhafte Terrassenwohnung im Neubauprojekt...
€ 965.000
3
Schlafzimmer
1
Badezimmer
76 m2
Größe
April 15, 2026
Familienwohnung I Eigengarten I Erstbezug [A...
€ 1.740.000
4
Schlafzimmer
2
Badezimmer
129 m2
Größe
April 15, 2026


![Traumhafte Terrassenwohnung im Neubauprojekt [A] 7CJnnn9d0tYoYyoKyWWDSX 7](https://gesucht-gefunden.at/wp-content/uploadstorage/2026/04/7CJnnn9d0tYoYyoKyWWDSX-7-525x350.jpg)
![Familienwohnung I Eigengarten I Erstbezug [A] 1AGGCuUTSwdiKmTGCCoBtm](https://gesucht-gefunden.at/wp-content/uploadstorage/2026/04/1AGGCuUTSwdiKmTGCCoBtm-525x350.jpg)












