Objektbeschreibung
LEO LIVING! ERSTBEZUG! NEUBAU! WÄRMEPUMPE! ELEKTRISCHE BESCHATTUNG! NÄHE U6!
Sonnige Neubauwohnung Nähe U6 Perfektastrasse!
Tauchen Sie ein in die exklusive Welt dieses herausragenden Projekts im begehrten 23. Bezirk! Hier wird Wohnen zu einem einzigartigen Erlebnis. Die besondere Lage dieses Neubaus setzt neue Maßstäbe für urbanes Wohnen und bietet nicht nur
Mehr lesen
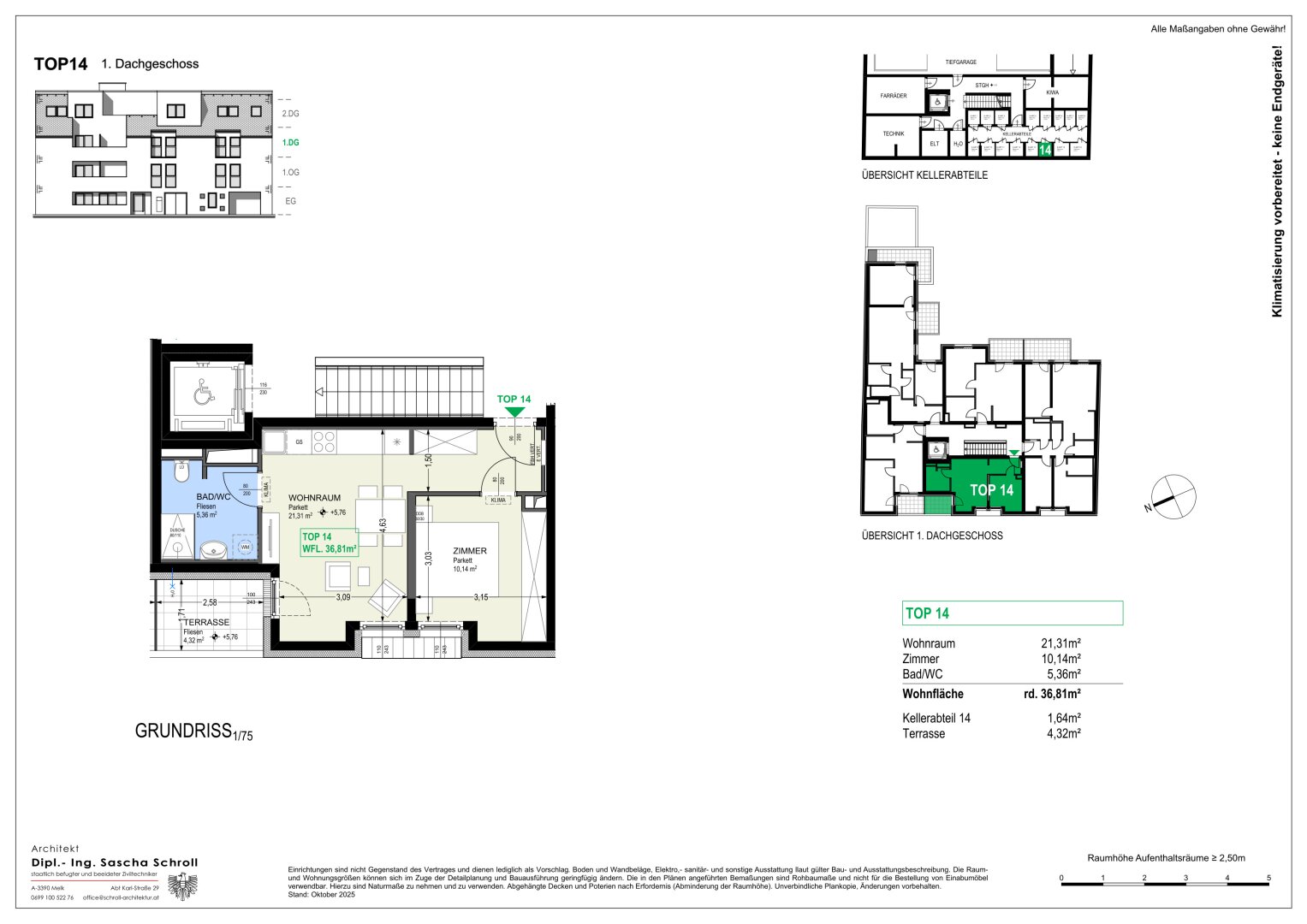
Objekt ID: 3168675
Preis: € 208.390
Nutzfläche: 37 m2
Gesamtfläche: 41 m2
Ziimmer insgesamt: 2
Schlafzimmer: 2
Badezimmer: 1
Nutzungsart: Wohnen
Provisionspflichtig: ja
Provision: 3% des Kaufpreises zzgl. 20% USt.
HWB: 40,50 kWh/(m²*a)
HWB Klasse: B
FGEE: 0.69
E-Ausweis Gültig Bis:: 29.06.2031
Energieausweis Art: Bedarf
Balkon/Terrassen - Fläche: 4
Beziehbar: sofort
Etage: 1. DG / 1. Dachgeschoss
WC: 1
barrierefrei
Neubau
WG-geeignet
Personenaufzug
Dusche
Fußbodenheizung
offene Küche
Offene Küche
rollstuhlgerecht
Luft-Wärmepumpe
Massiv
Massivbauweise
Estrich
schlüsselfertig mit Keller
seniorengerecht
Räume veränderbar
Tiefgarage
Ähnliche Objekte
Anlegerhit oder Eigenheim | Sanierte 2-Zimme...
€ 299.000
2
Schlafzimmer
1
Badezimmer
60 m2
Größe
Mai 10, 2026
Hofseitige Gartenwohnung mit Terrasse I Grün...
€ 360.000
3
Schlafzimmer
1
Badezimmer
59 m2
Größe
Mai 10, 2026
















