Objektbeschreibung
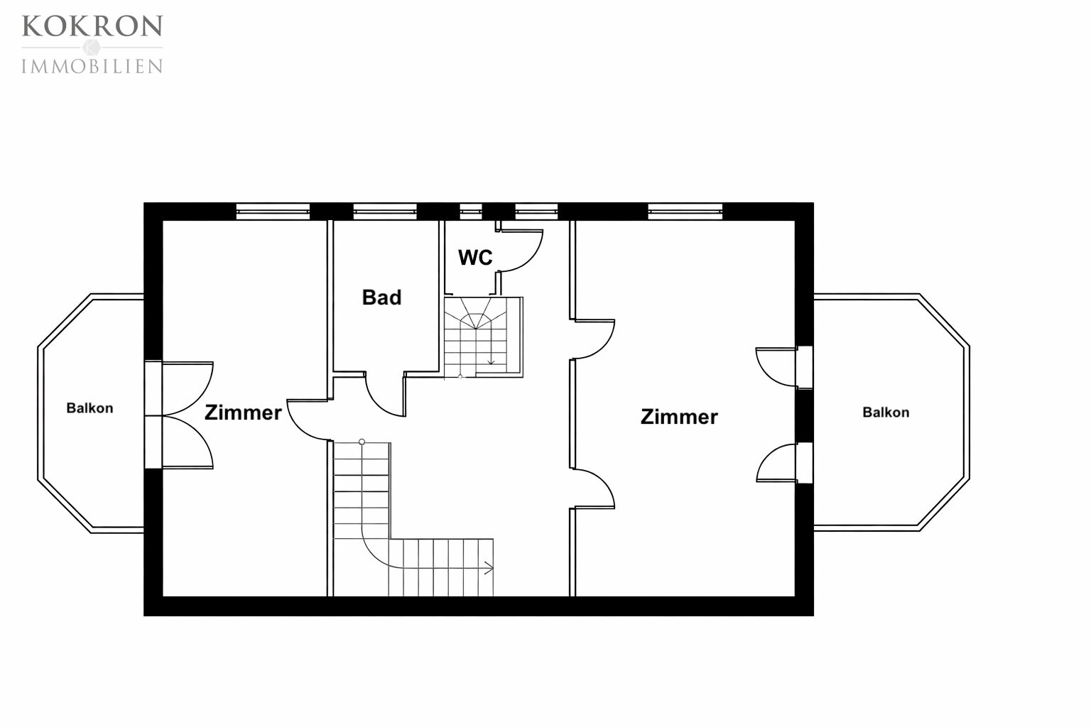
Mit ca. 205 m² Wohnfläche, insgesamt ca. 294 m² Nutzfläche und einem Grundstück von rund ca. 532 m² vereint diese Immobilie Großzügigkeit, Funktionalität und Privatsphäre – eine seltene Kombination im aktuellen Marktumfeld.
Das Besondere auf einen Blick
* 8 Zimmer – flexibel nutzbar
* 2 Badezimmer + 3 WCs
* Voll nutzbarer
Mehr lesen
Objekt ID: 3171477
Preis: € 1.370.000
Nutzfläche: 205 m2
Gesamtfläche: 294 m2
Ziimmer insgesamt: 8
Schlafzimmer: 8
Badezimmer: 2
Miete/m2 €: 4659.86
Nutzungsart: Wohnen
Provisionspflichtig: ja
Provision: 49.320,00 € inkl. 20% USt.
HWB: 87 kWh/(m²*a)
HWB Klasse: C
FGEE: 1.5
E-Ausweis Gültig Bis:: 09.11.2031
Energieausweis Art: Bedarf
Anzahl Balkone: 2
Beziehbar: Nach Vereinbarung
WC: 3
Balkon
Neubau
Parkett
teilmöbliert
vollerschlossen
Satteldach
Ähnliche Objekte
Neuer Preis! Exquisites Einfamilienhaus mit ...
€ 849.000
7
Schlafzimmer
3
Badezimmer
162 m2
Größe
April 14, 2026
Neuer Preis! Erstbezug | Moderne 6 Zi Doppel...
€ 759.000
6
Schlafzimmer
3
Badezimmer
143 m2
Größe
April 13, 2026
Erstbezug | Modernes Einfamilienhaus | Grün-...
€ 699.000
5
Schlafzimmer
1
Badezimmer
124 m2
Größe
April 13, 2026
















