Objektbeschreibung
Das Objekt befindet sich in angenehmer Lage mit super Anbindung an die öffentlichen Verkehrsmitteln, sowie mehreren Nahversorgern und Tankstelle, lässt es keine Wünsche offen.
Die Gesamte Straßenfront von ca 10 m ist verglast und bietet sich ideal als Auslage an.
Das Objekt kann als Autohaus, aber auch als kleiner Supermarkt,
Mehr lesen
Objekt ID: 317676
Preis: € 2.500 pro Monat
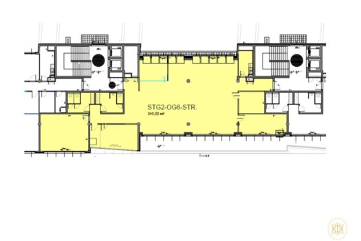
Nutzfläche: 0 m2
Gesamtfläche: 0 m2
Ziimmer insgesamt: 0
Schlafzimmer: 0
Badezimmer: 0
Year Built: 1970
Available From: nach Vereinbarung
Neubau
vollerschlossen
Fliesen
Fernblick




