Erweiterte Suche
Suchagent aktivieren
Exklusive Anzeigen

Graz – Jakomini – Bürofläche – 4 Räume – 65 m²

Schießstattgasse, ,

4 Zimmer
zu Favoriten hinzufügen
teilen
Suchergebnisse

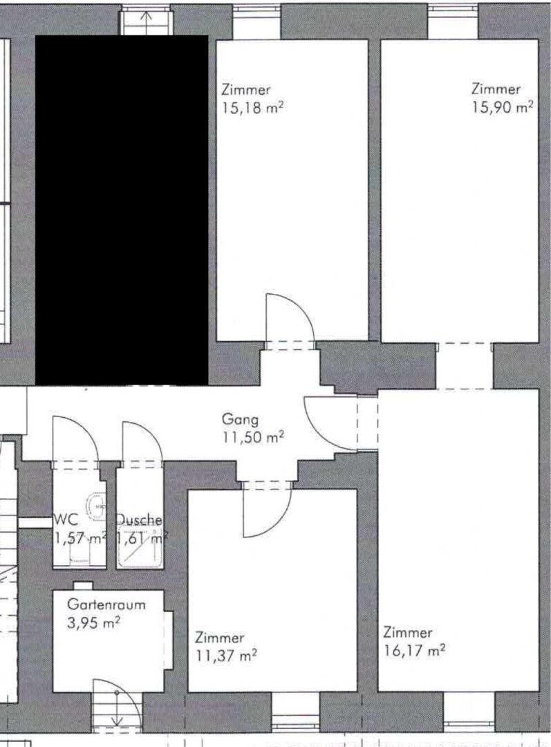
Objektbeschreibung

Zur Vermietung gelangt eine Gewerbefläche mit einer Nutzfläche von ca. 65 m² .

 

Raumaufteilung:
+ 4 Räume, davon 3 getrennt begehbar
+ 1 Raum, nutzbar z.B. als Kaffeeküche
+ Toilette

 

Diese Fläche eignet sich durch ihr  attraktives  Preis/Leistungsverhältnis als Bürofläche, Homeoffice, Coworking oder Startup.

Alle
Mehr lesen

Adresse: Schießstattgasse
Ort:
Bezirk:
Bundesland:
PLZ: 8010
Land: Österreich
Objekt ID: 3185526
Nutzfläche: 0 m2
Gesamtfläche: 0 m2
Ziimmer insgesamt: 4
Schlafzimmer: 4
Badezimmer: 0
Miete (netto) €: 370
USt €: 98.48
Nutzungsart: Wohnen
Provisionspflichtig: ja
Kaution: 3 Bruttomonatsmieten
HWB: 135 kWh/(m²*a)
HWB Klasse: D
E-Ausweis Gültig Bis:: 31.12.2032
Energieausweis Art: Bedarf
Beziehbar: nach Vereinbarung
Etage: 1. KG
WC: 1
Abstellräume: 1
Altbau
Etagenheizung
Kabel/Sat-TV
Abstellraum
Massiv
Massivbauweise
vollerschlossen
Elektro
Kunststoff
Satteldach

Kahler Immobilien OG
Gudrun Kahler

Kontaktaufnahme









    • Preisinformation
      Miete netto370,00 €
      Ust.98,48 €

    Vergleichen