Objektbeschreibung
Wohnen mit direkter Innenstadtlage in Dornbirn – Große 3-Zimmer-Maisonettewohnung
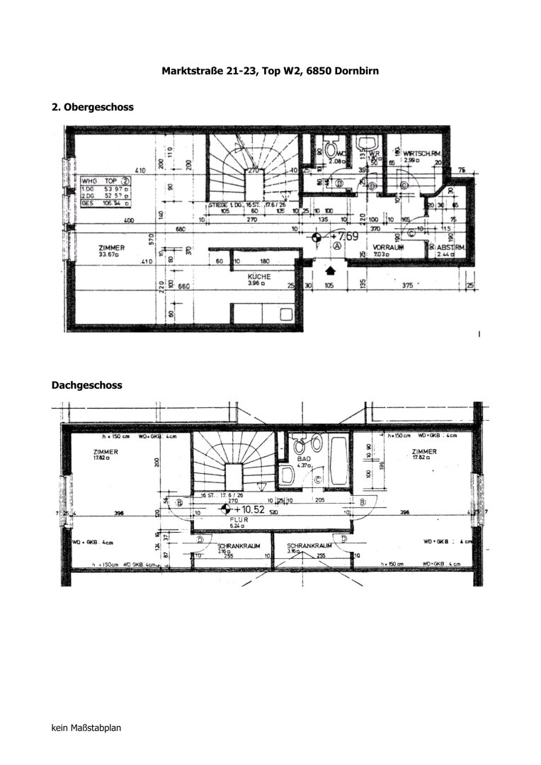
In der Marktstraße 21 in Dornbirn erwartet Sie diese attraktive 3-Zimmerwohnung mit durchdachter Raumaufteilung auf zwei Ebenen (2. Obergeschoss + Dachgeschoss). Mit einer Wohnfläche von 106,10 m² bietet die Wohnung helles, großzügiges Wohnen und viele praktische Extras. Das offene Küche-Ess-Wohnzimmer bildet
Mehr lesen
Objekt ID: 3188194
Preis: € 1.250
Nutzfläche: 106 m2
Gesamtfläche: 0 m2
Ziimmer insgesamt: 3
Schlafzimmer: 3
Badezimmer: 1
Miete (netto) €: 1250
Gesamtbelastung €: 1250
Nutzungsart: Wohnen
Provisionspflichtig: nein
HWB: 99 kWh/(m²*a)
HWB Klasse: C
FGEE: 1.9
Energieausweis Art: Bedarf
Beziehbar: 1. Juni 2026
WC: 2
Abstellräume: 2
Einbauküche
Gäste-WC
Gas
Badewanne
Kabel/Sat-TV
offene Küche
Abstellraum
Offene Küche
Freiplatz













