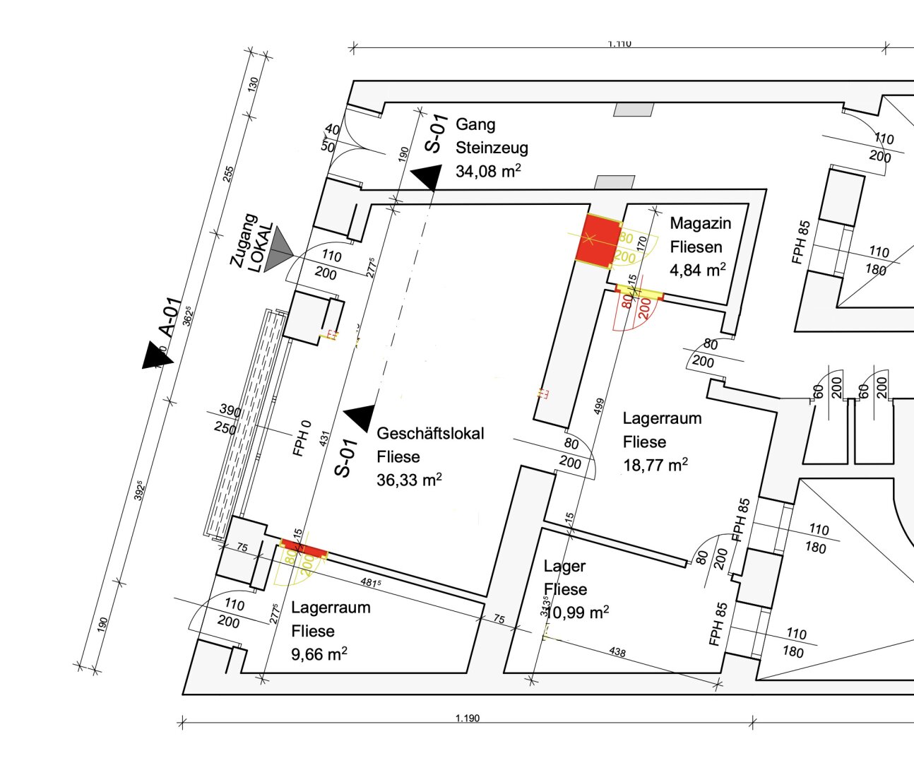
Objektbeschreibung
Vermietet wird ein 86 m2 großes Geschäftslokal im Erdgeschoß in sehr guter zentraler Lage im 3. Wiener Bezirk direkt auf der Landstraße Hauptstraße zwischen Juchgasse und Keinergasse. Das Objekt kann für sämtliche Branchen ausser Lebensmittel und Gastronomie benützt werden.
Das Objekt teilt sich wie folgt auf:
– ein zirka 36
Mehr lesen
Objekt ID: 3189263
Nutzfläche: 0 m2
Gesamtfläche: 86 m2
Ziimmer insgesamt: 5
Schlafzimmer: 5
Badezimmer: 0
Miete (netto) €: 1550
USt €: 368.08
Nutzungsart: Gewerbe
Provisionspflichtig: ja
Kaution: 3 Bruttomonatsmieten
HWB: 160,63 kWh/(m²*a)
HWB Klasse: E
FGEE: 3.12
Energieausweis Art: Bedarf
Beziehbar: sofort
Max. Mietdauer: unbefristet
Etage: EG
WC: 1
Abstellräume: 1
Altbau
Fliesen
rollstuhlgerecht
vollerschlossen
Räume veränderbar
Teeküche
















