Objektbeschreibung
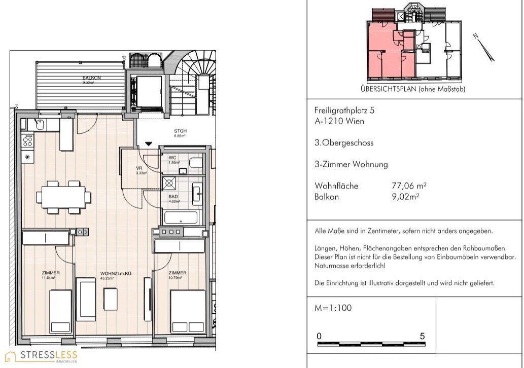
Hier gelangt eine wunderschöne 3 Zimmer Wohnung mit Balkon im 3, Lift-Stock eines komplett revitalisierten Jahrhundertwende Zinshauses in absoluter Grünruhelage zur Vermietung.
Raumaufteilung:
– Vorzimmer
– Wohnküche
– 2 Schlafzimmer
– Wohnzimmer
– Badezimmer mit Badewanne
– Fußbodenheizung
– Hauszentralheizung
– Kellerabteil
– Wunderschöner Garten
Mehr lesen
Objekt ID: 3190511
Preis: € 1.578.95
Nutzfläche: 77 m2
Gesamtfläche: 0 m2
Ziimmer insgesamt: 3
Schlafzimmer: 3
Badezimmer: 1
Miete (netto) €: 1250
USt €: 143.54
Gesamtbelastung €: 1578.95
Nutzungsart: Wohnen
Provisionspflichtig: nein
Kaution: 3 Bruttomonatsmieten
HWB: 31,50 kWh/(m²*a)
HWB Klasse: B
FGEE: 0.78
E-Ausweis Gültig Bis:: 18.01.2028
Energieausweis Art: Bedarf
Anzahl Balkone: 1
Balkon/Terrassen - Fläche: 9
Beziehbar: sofort
Etage: 3. Etage
WC: 1
Balkon
barrierefrei
Personenaufzug
Gas
Badewanne
Fußbodenheizung
vollerschlossen
Ähnliche Objekte
Sonnig mit perfekter Ausrichtung – Stilvolle...
€ 1.300
3
Schlafzimmer
1
Badezimmer
58 m2
Größe
April 15, 2026
*Superprojekt: “Über den Baumwipfeln...
€ 2.098.78
3
Schlafzimmer
1
Badezimmer
97 m2
Größe
April 15, 2026













