Erweiterte Suche
Suchagent aktivieren
Exklusive Anzeigen

Traunsee Residence – Exklusive Designwohnung mit Panorama-Seeblick in Gmunden – Provisionsfrei!

€ 1.713.960,00

,

158.654 Zimmer
zu Favoriten hinzufügen
teilen
Suchergebnisse

Objektbeschreibung

HIGH END LIVING mit der neuesten Ausstattung in der Schmideggstraße, Gmunden – Luxuriös, Stilvoll und Elegant – das Projekt „LIVING FRAMES“

Sorgfältig in den Hang gebaut, bietet es Ihnen einen ruhigen Rückzugsort in Ihrer neuen Wohlfühloase.

Das Objekt umfasst 6 Wohneinheiten, aufgeteilt auf 4 Geschosse. Ihre neue Traumwohnung befindet sich im 3.
Mehr lesen

Ort:
Bezirk:
Bundesland:
PLZ: 4810
Land: Österreich
Objekt ID: 3195706
Preis: € 1.713.960
Nutzfläche: 159 m2
Gesamtfläche: 0 m2
Ziimmer insgesamt: 4
Schlafzimmer: 4
Badezimmer: 2
Nutzungsart: Wohnen
HWB: 40,30 kWh/(m²*a)
HWB Klasse: B
FGEE: 0.75
E-Ausweis Gültig Bis:: 03.10.2031
Energieausweis Art: Bedarf
Balkon/Terrassen - Fläche: 83
Beziehbar: 01.09.2025
Etage: 2. DG
WC: 3
Abstellräume: 1
barrierefrei
Neubau
Einbauküche
Personenaufzug
Gäste-WC
Parkett
Bad mit Fenster
Fußbodenheizung
Kabel/Sat-TV
Fahrradraum
offene Küche
Abstellraum
Offene Küche
rollstuhlgerecht
Klimaanlage
Luft-Wärmepumpe
seniorengerecht
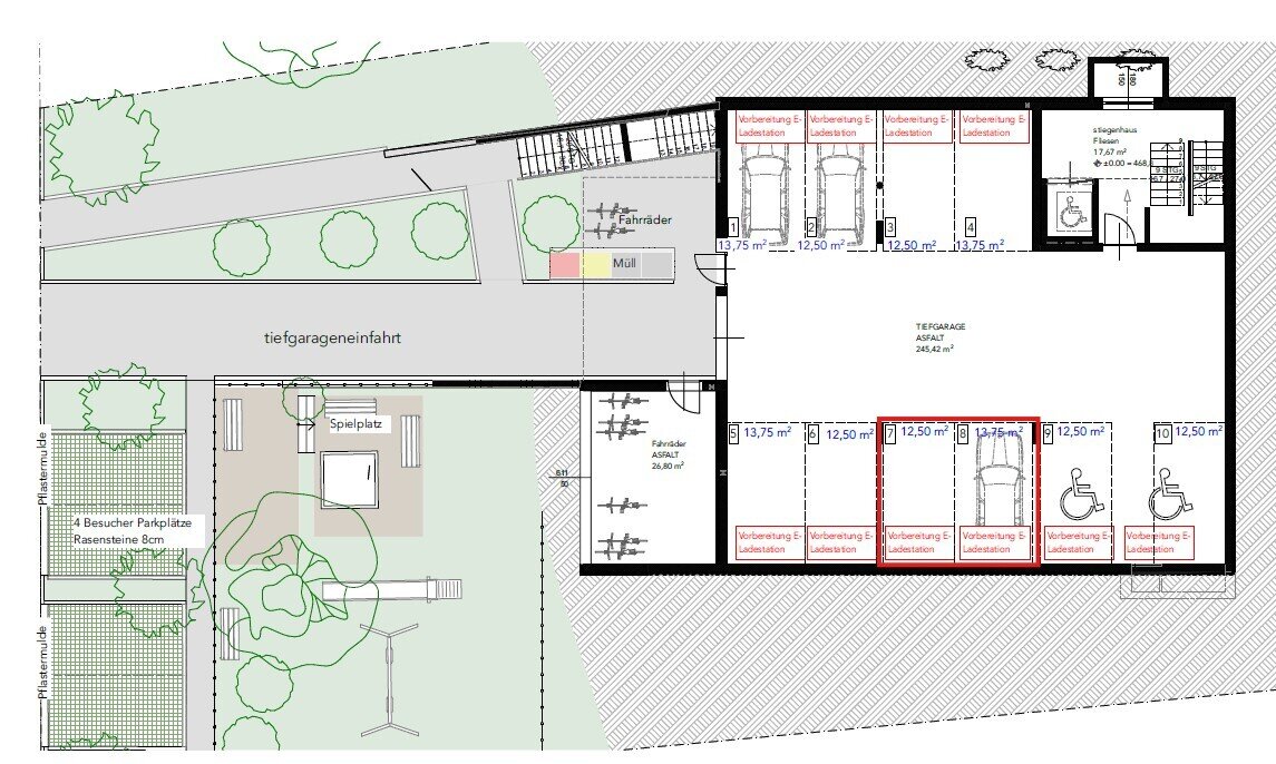
Tiefgarage
Flachdach
als Ferienimmobilie nutzbar

Ähnliche Objekte

vergleichen
Aussicht
PROVISIONSFREI

Ein Logenplatz über dem Traunsee – Penthouse...

3
Schlafzimmer
April 16, 2026
vergleichen
2ycWzzsLYeMejV8p0i04fJ

Attraktive Anlegerwohnung in Gmunden – ca. 5...

€ 185.000
2
Schlafzimmer
1
Badezimmer
58 m2
Größe
April 16, 2026
vergleichen
4tgXQpAO76739hnPi0XoDl

Lakeside Exklusiv – Ein Refugium der E...

€ 1.281.660
3
Schlafzimmer
1
Badezimmer
84 m2
Größe

Vergleichen