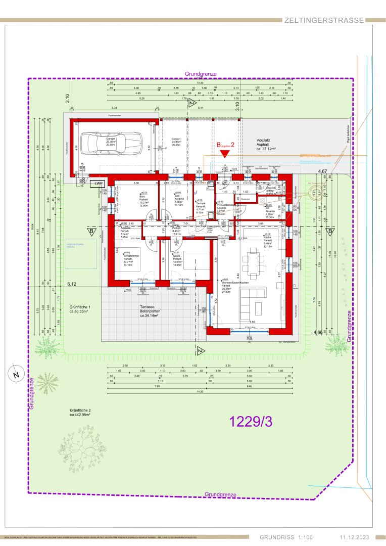
Objektbeschreibung
Der massiv gebaute mit 50cm Ziegel, barrierefreie Bungalow mit angebauter Garage ist eingeteilt in:
* Eingangsbereich mit Garderobe
* Gäste WC
* Abstellraum
* Technikraum
* Badezimmer mit Fenster, WC und Dusche
* Büro
* Großzügiger Wohn- und Essbereich mit Küche, Kaminofen, Ausgang auf
Mehr lesen
Objekt ID: 3206241
Preis: € 668.000
Nutzfläche: 120 m2
Gesamtfläche: 800 m2
Ziimmer insgesamt: 3
Schlafzimmer: 3
Badezimmer: 1
Nutzungsart: Wohnen
Provisionspflichtig: ja
Provision: 3% des Kaufpreises zzgl. 20% USt.
HWB: 52,90 kWh/(m²*a)
HWB Klasse: C
FGEE: 0.65
E-Ausweis Gültig Bis:: 08.04.2036
Energieausweis Art: Bedarf
Balkon/Terrassen - Fläche: 35
Etage: EG
WC: 2
Abstellräume: 1
vollmöbliert
barrierefrei
Neubau
Gäste-WC
Parkett
Bad mit Fenster
Fußbodenheizung
Kabel/Sat-TV
Kamin
Luft-Wärmepumpe
Massiv
Massivbauweise
vollerschlossen
Walmdach
Ähnliche Objekte
Großzügiges Wohnhaus in sonniger Lage in Bad...
€ 229.000
7
Schlafzimmer
2
Badezimmer
185 m2
Größe
Mai 4, 2026
Ehemaliger Bauernhof, Bauernhaus, Ferienappa...
€ 350.000
7
Schlafzimmer
3
Badezimmer
178 m2
Größe
März 31, 2026

















