Objektbeschreibung
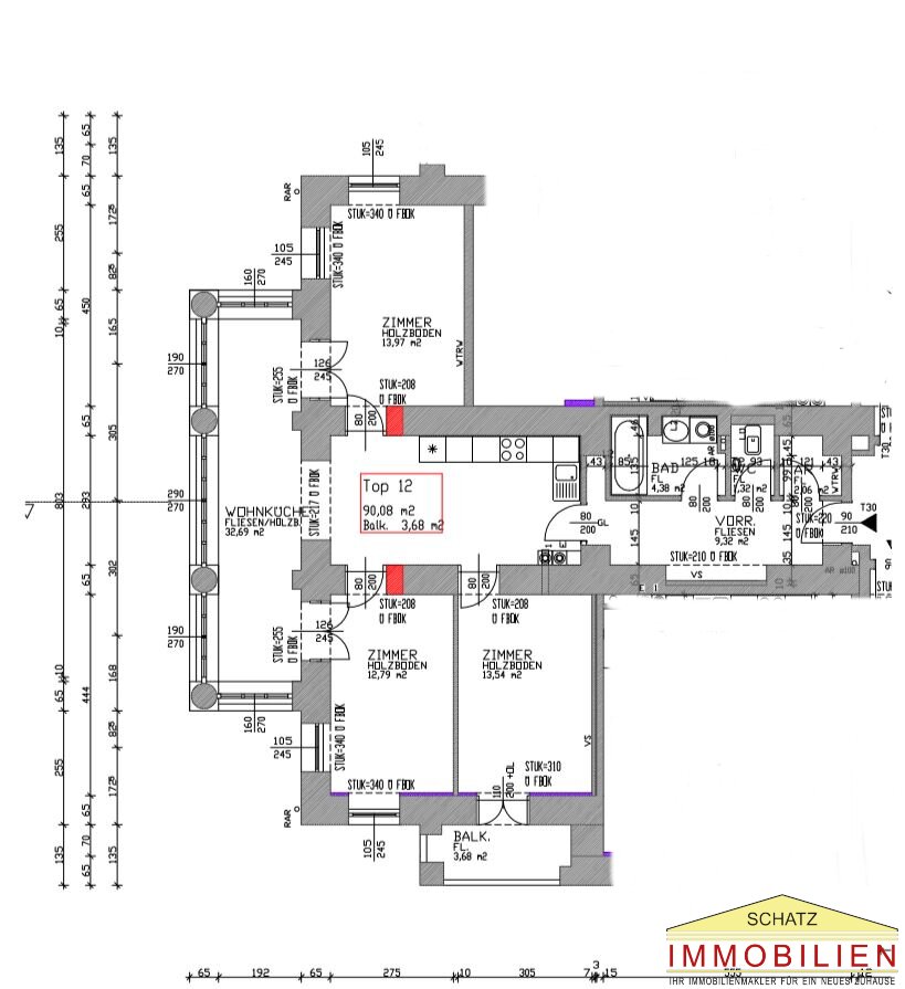
Sie sind auf der Suche nach einer neuen Wohnung in einer ruhigen und grünen Umgebung? Dann könnte diese Immobilie in Neuhaus, Niederösterreich genau das Richtige für Sie sein! Die geräumige 4-Zimmer Wohnung bietet Ihnen nicht nur eine perfekte Lage, sondern auch eine moderne und gepflegte Ausstattung.
Mit einer Fläche von
Mehr lesen
Objekt ID: 3218572
Preis: € 1.143.47
Nutzfläche: 90 m2
Gesamtfläche: 94 m2
Ziimmer insgesamt: 4
Schlafzimmer: 4
Badezimmer: 1
Miete/m2 €: 8.7
Miete (netto) €: 814.32
USt €: 103.95
Gesamtbelastung €: 1143.47
Nutzungsart: Wohnen
Provisionspflichtig: nein
Kaution: 4.573,88 €
HWB: 76,97 kWh/(m²*a)
HWB Klasse: D
Energieausweis Art: Bedarf
Anzahl Balkone: 1
Balkon/Terrassen - Fläche: 13
Beziehbar: nach Vereinbarung
Max. Mietdauer: unbefristet
WC: 1
Abstellräume: 1
Balkon
barrierefrei
Personenaufzug
Altbau
Gas
Parkett
Badewanne
Kabel/Sat-TV
Fahrradraum
Zentralheizung
offene Küche
Abstellraum
Offene Küche
rollstuhlgerecht
Massiv
Massivbauweise
vollerschlossen
seniorengerecht
Rampe
Ähnliche Objekte
Gemütliche 1-Zimmer-Wohnung in Neuhaus – Ihr...
€ 518.35
1
Schlafzimmer
1
Badezimmer
41 m2
Größe
April 15, 2026
Charmante Altbau- 3 Zimmerwohnung in Neuhaus
€ 823.60
3
Schlafzimmer
1
Badezimmer
70 m2
Größe
April 15, 2026

















