Objektbeschreibung
ZUM WOHNGEBÄUDE
Das Wohngebäude besticht durch beste Lage innerhalb des Ortes, seine moderne Bauausführung und ein hochwertiges Erscheinungsbild. Das Gebäude verfügt über ein Erdgeschoß und zwei Obergeschoße mit 22 Wohnungen. Alle Wohnungen verfügen über Balkone oder Terrassen, alle Erdgeschoss-Wohnungen haben einen Garten. Zur Wohnanlage gehört auch ein eigener Kinderspielplatz. KFZ Stellplätze sind vorhanden.
Mehr lesen
Objekt ID: 3231274
Preis: € 249.000
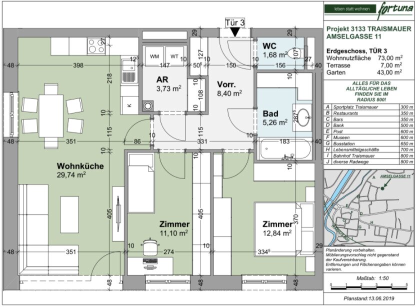
Nutzfläche: 73 m2
Gesamtfläche: 73 m2
Ziimmer insgesamt: 3
Schlafzimmer: 3
Badezimmer: 1
Nutzungsart: Wohnen
Provisionspflichtig: ja
Provision: 3% des Kaufpreises zzgl. 20% USt.
HWB: 21,63 kWh/(m²*a)
HWB Klasse: A
FGEE: 0.81
E-Ausweis Gültig Bis:: 21.10.2028
Energieausweis Art: Bedarf
Balkon/Terrassen - Fläche: 7
Beziehbar: nach Vereinbarung
Max. Mietdauer: unbefristet
Etage: EG
WC: 1
Abstellräume: 1
barrierefrei
Neubau
Parkett
Massiv
Massivbauweise
Ähnliche Objekte
Neubau-Erdgeschoss mit Traumgarten – ideal f...
€ 179.000
2
Schlafzimmer
1
Badezimmer
54 m2
Größe
April 17, 2026
Wohnglück in Traismauer: Neuwertige 3-Zimmer...
€ 225.000
3
Schlafzimmer
1
Badezimmer
65 m2
Größe
April 17, 2026
Neuwertige 3-Zimmer-Wohnung mit Balkon in Tr...
€ 225.000
3
Schlafzimmer
1
Badezimmer
76 m2
Größe
April 17, 2026


















