Objektbeschreibung
KURZBESCHREIBUNG FÜR EILIGE LESER
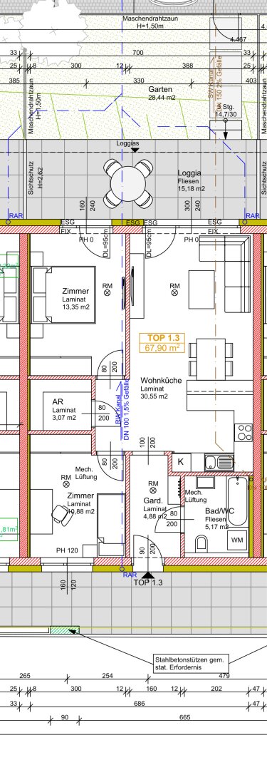
*
ca. 68 m² Wohnfläche
*
Loggia mit über 15 m²
*
Eigengarten mit ca. 28,5 m²
*
Raumaufteilung: Vorraum, 2 Schlafzimmer, Abstellraum, großzügiger Wohn-Essbereich, Badezimmer mit Dusche, WC und Waschmaschinenanschluss
*
Top-Lage – fußläufig zum Bahnhof Marchegg
Dokumente
Objekt ID: 3232539
Preis: € 239.000
Nutzfläche: 67 m2
Gesamtfläche: 0 m2
Ziimmer insgesamt: 3
Schlafzimmer: 3
Badezimmer: 1
Miete/m2 €: 4014.93
Nutzungsart: Wohnen
Provisionspflichtig: ja
Provision: 8.604,00 € inkl. 20% USt.
HWB: 27 kWh/(m²*a)
HWB Klasse: B
FGEE: 0.75
E-Ausweis Gültig Bis:: 29.07.2029
Energieausweis Art: Bedarf
Balkon/Terrassen - Fläche: 15
Beziehbar: sofort
WC: 1
Abstellräume: 1
Neubau
Gas
Badewanne
Fußbodenheizung
Rollläden
Massiv
Massivbauweise















