Objektbeschreibung
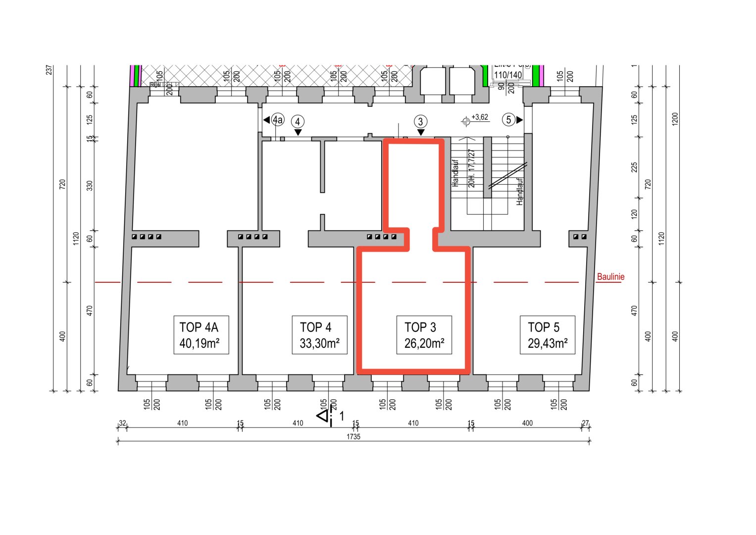
Die angebotene Wohnung hat 26,2 m² und besteht aus einer Küche mit integrierter Dusche und einem Zimmer.
Es werden in diesem Objekt mehrere Wohnungen zum Kauf angeboten.
Bei Interesse finden Sie alle Objekte auf www.myimmo.at [http://www.myimmo.at].
In zentraler Lage werden insgesamt 10 renovierungsbedürftige Altbauwohnungen mit ein bis zwei Zimmern zwischen
Mehr lesen
Objekt ID: 3237272
Preis: € 78.740
Nutzfläche: 26 m2
Gesamtfläche: 26 m2
Ziimmer insgesamt: 0
Schlafzimmer: 0
Badezimmer: 0
Betriebskosten €: 92.87
Nutzungsart: Wohnen
Provisionspflichtig: ja
Provision: 3% des Kaufpreises zzgl. 20% USt.
HWB: 243 kWh/(m²*a)
HWB Klasse: F
FGEE: 2.23
E-Ausweis Gültig Bis:: 25.05.2031
Energieausweis Art: Bedarf
Beziehbar: sofort
Etage: 1. Etage
Altbau






