Objektbeschreibung
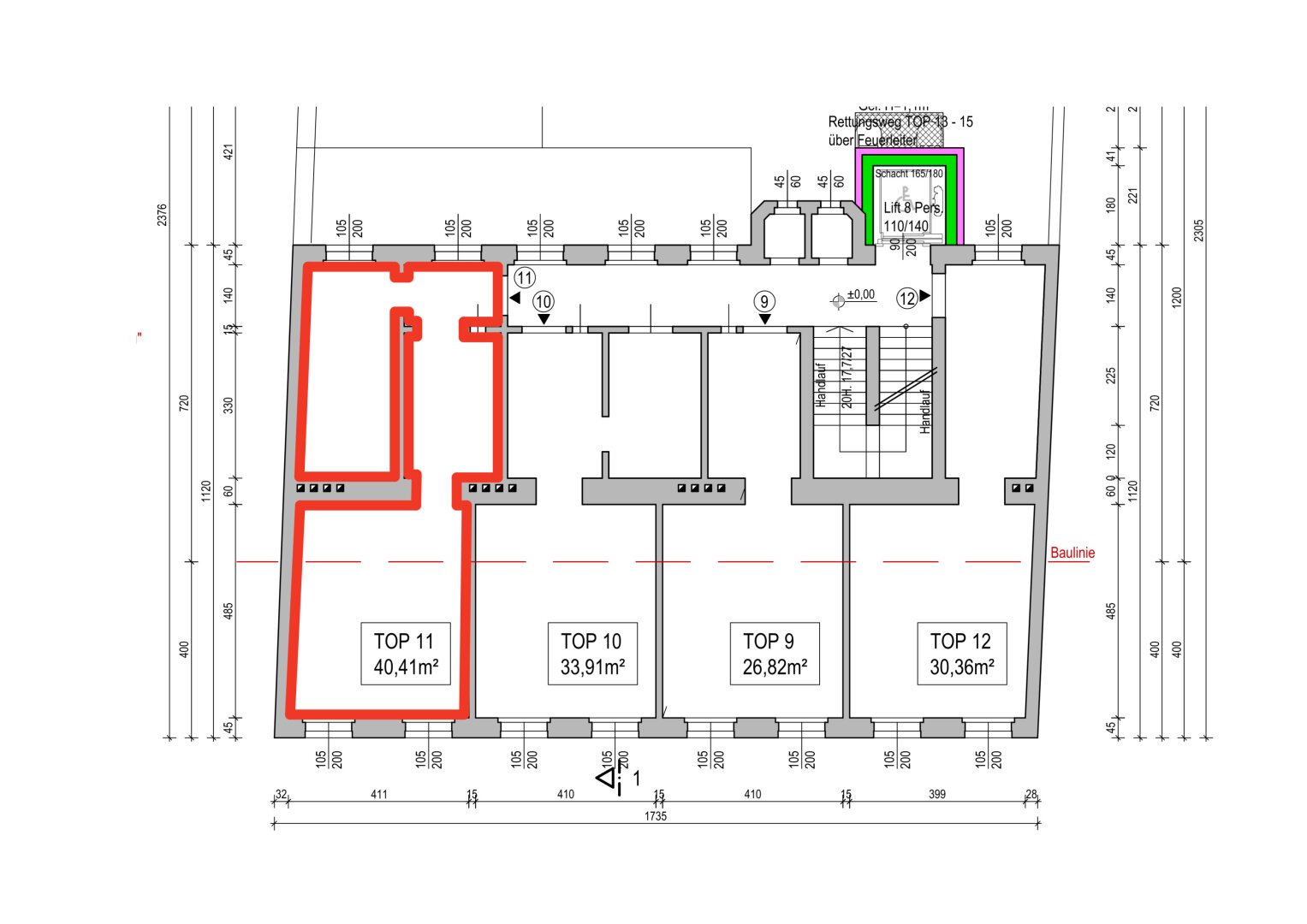
Die angebotene Wohnung hat 40,41m² und besteht aus einem Zimmer, einem Kabinett, einer Küche und einem Vorraum.
Es werden in diesem Objekt mehrere Wohnungen zum Kauf angeboten.
Bei Interesse finden Sie alle Objekte auf www.myimmo.at [http://www.myimmo.at].
In zentraler Lage werden insgesamt 10 renovierungsbedürftige Altbauwohnungen mit ein bis zwei Zimmern zwischen
Mehr lesen
Objekt ID: 3238672
Preis: € 123.000
Nutzfläche: 40 m2
Gesamtfläche: 40 m2
Ziimmer insgesamt: 0
Schlafzimmer: 0
Badezimmer: 0
Betriebskosten €: 141.02
Nutzungsart: Wohnen
Provisionspflichtig: ja
Provision: 3% des Kaufpreises zzgl. 20% USt.
HWB: 243 kWh/(m²*a)
HWB Klasse: F
FGEE: 2.23
E-Ausweis Gültig Bis:: 25.05.2031
Energieausweis Art: Bedarf
Beziehbar: sofort
Etage: 3. Etage
Altbau
Ähnliche Objekte
PREISWERTE 3 ZIMMER (4 ZIMMER MÖGLICH) MIT T...
€ 335.000
3
Schlafzimmer
1
Badezimmer
87 m2
Größe
April 18, 2026
Stilvolle Wohnung mit Pool und Gartenglück &...
€ 390.000
3
Schlafzimmer
1
Badezimmer
76 m2
Größe
April 18, 2026





