Objektbeschreibung
„Am marokkanischen Platz“ – Ein verborgenes Gartenrefugium im Herzen Wiens
Eingebettet in ein visionäres Gesamtkonzept aus Architektur, Natur und Kunst entfaltet sich mit dem Projekt Am marokkanischen Platz ein außergewöhnlicher Wohnraum, der urbanes Leben neu interpretiert.
Als Teil des renommierten Ensembles am Schönen Platz vereint dieses Projekt zeitlose Eleganz mit einer
Mehr lesen
Dokumente
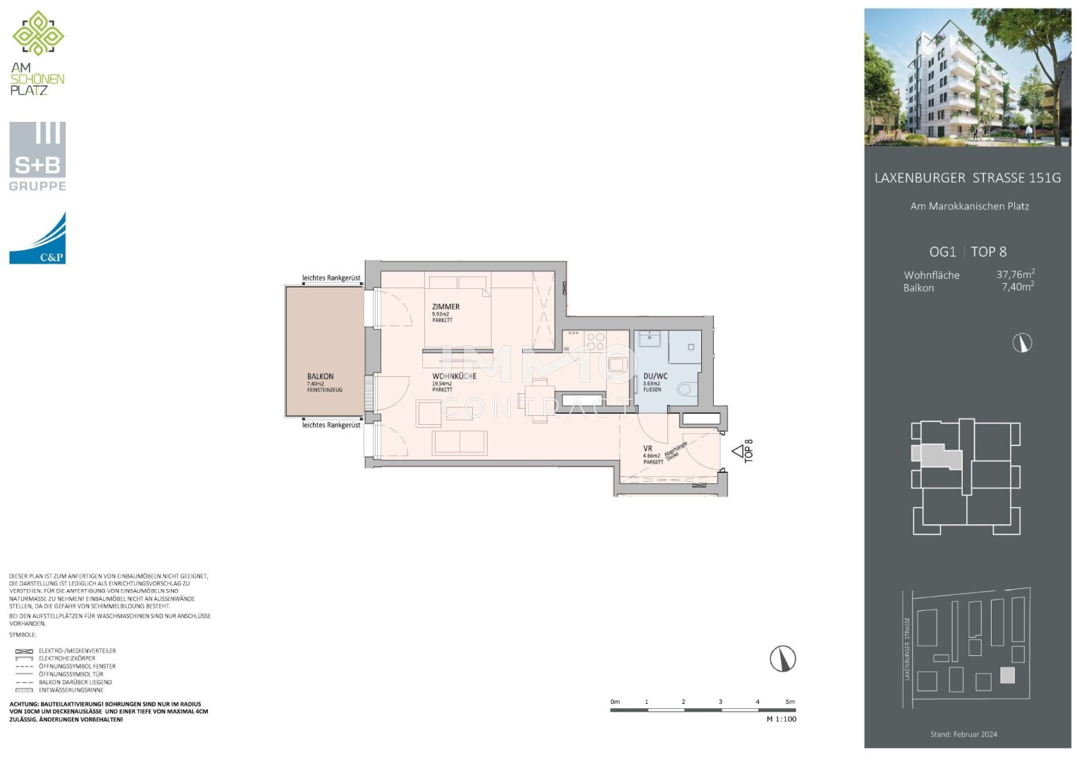
Objekt ID: 3239386
Preis: € 335.000
Nutzfläche: 38 m2
Gesamtfläche: 0 m2
Ziimmer insgesamt: 2
Schlafzimmer: 2
Badezimmer: 1
Miete/m2 €: 8080.08
Nutzungsart: Wohnen
Provisionspflichtig: nein
Provision: Provision bezahlt der Abgeber.
HWB: 19,31 kWh/(m²*a)
HWB Klasse: A
FGEE: 0.68
E-Ausweis Gültig Bis:: 09.06.2032
Energieausweis Art: Bedarf
Balkon/Terrassen - Fläche: 7
Beziehbar: sofort
Etage: 1
barrierefrei
Neubau
Personenaufzug
Parkett
Kabel/Sat-TV
Fahrradraum
Klimaanlage
Gartennutzung
schlüsselfertig mit Keller
Tiefgarage













