Objektbeschreibung
SONNENRESORT I
EXKLUSIVE ANLEGERWOHNUNGEN BIS ZU 8 % RENDITE MÖGLICH ODER EIGENNUTZUNG, ODER IHR ZWEITWOHNSITZ!
ST. KANZIAN AM KLOPEINER SEE
KAUF AB SOFORT MÖGLICH
GRUNDBUCH STATT SPARBUCH
LASSEN SIE IHRE ERSPARNISSE FÜR SIE ARBEITEN!
Diese außergewöhnliche Wohnanlage stellt eine der letzten Gelegenheiten an den Kärntner Seen dar,
eine Immobilie mit gültiger Zweitwohnsitzgenehmigung
Mehr lesen
Objekt ID: 3257389
Preis: € 236.740
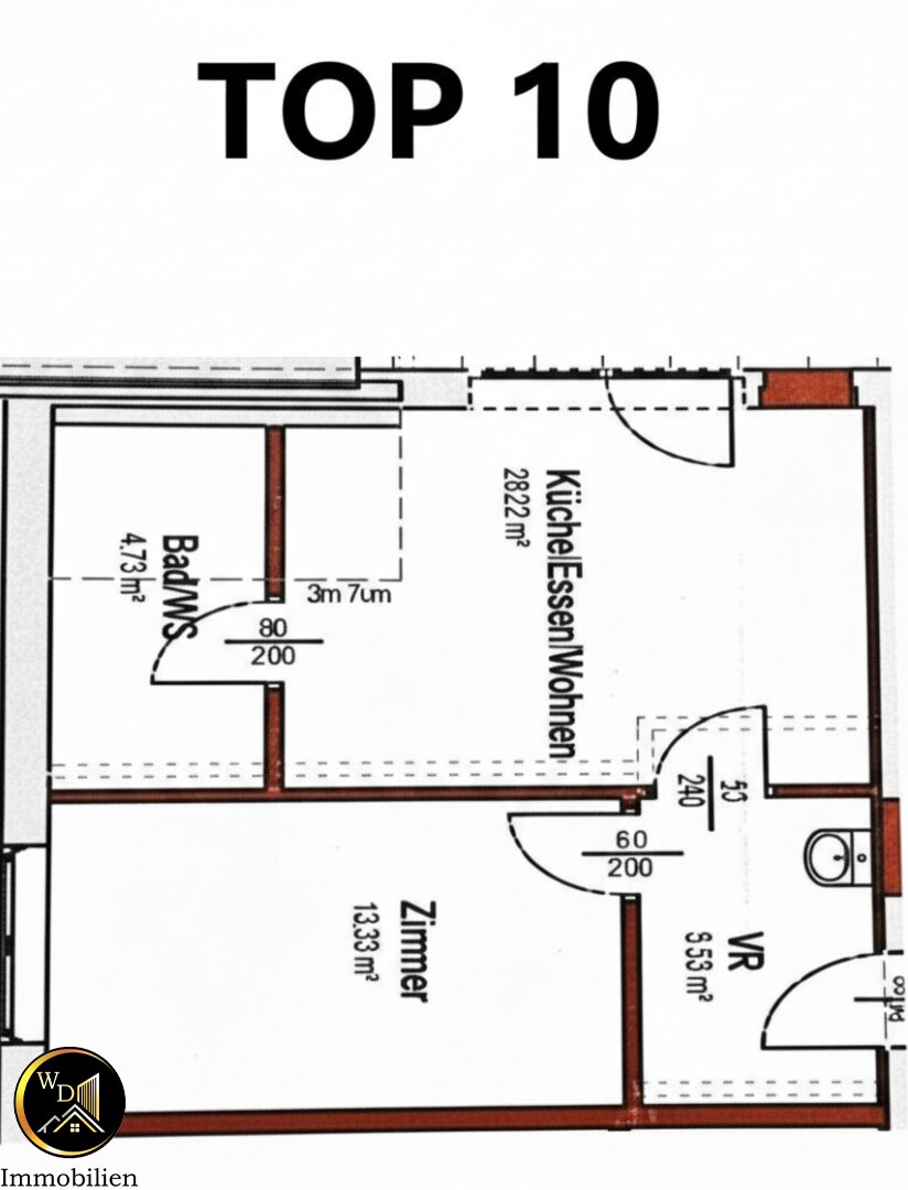
Nutzfläche: 39 m2
Gesamtfläche: 57 m2
Ziimmer insgesamt: 2
Schlafzimmer: 2
Badezimmer: 1
Miete/m2 €: 5533.33
Nutzungsart: Anlage
HWB: 45 kWh/(m²*a)
HWB Klasse: B
FGEE: 0.68
E-Ausweis Gültig Bis:: 16.07.2035
Energieausweis Art: Bedarf
Anzahl Balkone: 1
Balkon/Terrassen - Fläche: 19
Beziehbar: Herbst/Winter 2026
Etage: 1. DG
WC: 1
Abstellräume: 1
Balkon
Neubau
Personenaufzug
Parkett
Dusche
Fußbodenheizung
Carport
Massiv
Massivbauweise
schlüsselfertig mit Keller
als Ferienimmobilie nutzbar
Ähnliche Objekte
„PROVISIONSFREI– RARITÄT-Top-Rendite bis zu ...
€ 249.870
6
Schlafzimmer
1
Badezimmer
42 m2
Größe
April 19, 2026








