Objektbeschreibung
Moderne Doppelhaushälften mit Garten in ruhiger Lage
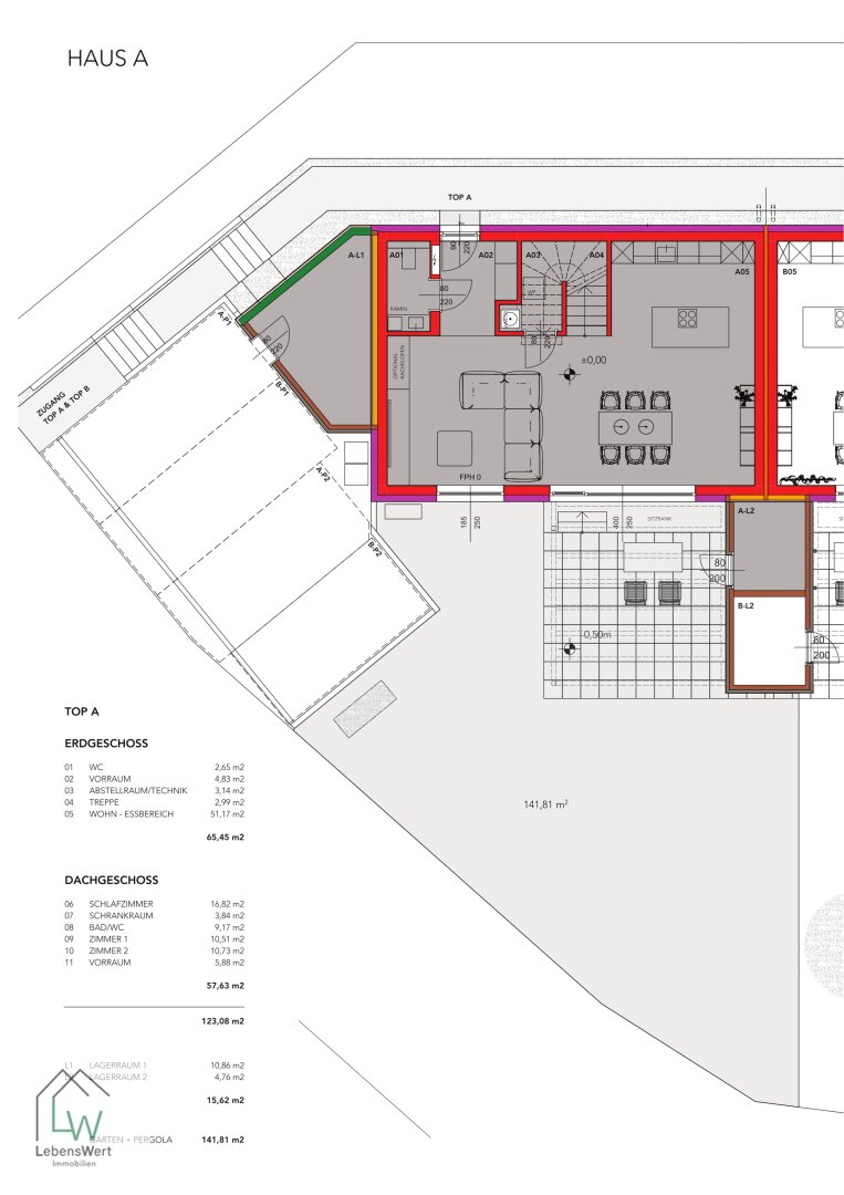
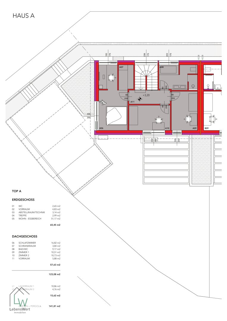
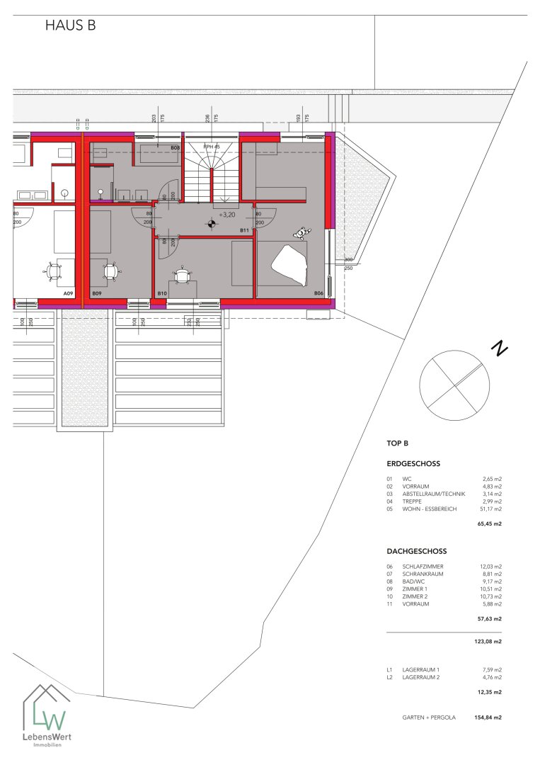
In idyllischer Lage von Flattendorf bei Hartberg entstehen zwei moderne Doppelhaushälften mit jeweils rund 122 m² Wohnfläche und eigenem Garten – ideal für alle, die naturnah wohnen und dennoch schnell in Hartberg oder auf der A2 sein möchten.
Ein Zuhause, das Ruhe, Qualität
Mehr lesen
Objekt ID: 3258771
Nutzfläche: 122 m2
Gesamtfläche: 18 m2
Ziimmer insgesamt: 3
Schlafzimmer: 3
Badezimmer: 1
Nutzungsart: Wohnen
Provisionspflichtig: ja
Provision: 3% des Kaufpreises zzgl. 20% USt.
HWB: 37,50 kWh/(m²*a)
HWB Klasse: B
FGEE: 0.64
E-Ausweis Gültig Bis:: 29.05.2035
Energieausweis Art: Bedarf
Balkon/Terrassen - Fläche: 27
WC: 2
Abstellräume: 3
Neubau
Parkett
Bad mit Fenster
Zentralheizung
Luft-Wärmepumpe
Massiv
Massivbauweise
Ähnliche Objekte
Neuwertiges Einfamilienhaus – modernes Wohne...
€ 399.000
4
Schlafzimmer
2
Badezimmer
133 m2
Größe
Dezember 31, 2025











