Objektbeschreibung
Neubauwohnungen in Ruhelage: Moderne Erstbezugs-Wohnungen in Röthis zu vermieten!
In der Bruchatgasse 55 in Röthis erwartet Sie eine exklusive Wohnanlage mit hochwertigen 1- und 2-Zimmerwohnungen – ideal für Singles oder Paare, die Wert auf Komfort und modernes Design legen. Die lichtdurchfluteten Räume schaffen eine helle, freundliche Atmosphäre, während Holzdetails und
Mehr lesen
Objekt ID: 3261897
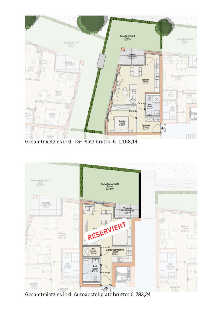
Nutzfläche: 0 m2
Gesamtfläche: 0 m2
Ziimmer insgesamt: 0
Schlafzimmer: 0
Badezimmer: 0
Nutzungsart: Wohnen
HWB: 30 kWh/(m²*a)
HWB Klasse: B
FGEE: 0.64
Energieausweis Art: Bedarf
Beziehbar: 01. April 2026
Neubau
Einbauküche
Personenaufzug
Parkett
Fußbodenheizung
Kabel/Sat-TV
Fahrradraum
offene Küche
Offene Küche
Freiplatz
seniorengerecht
Flachdach
Holz(rahmen)
Holzbauweise
Erdwärme

















