Objektbeschreibung
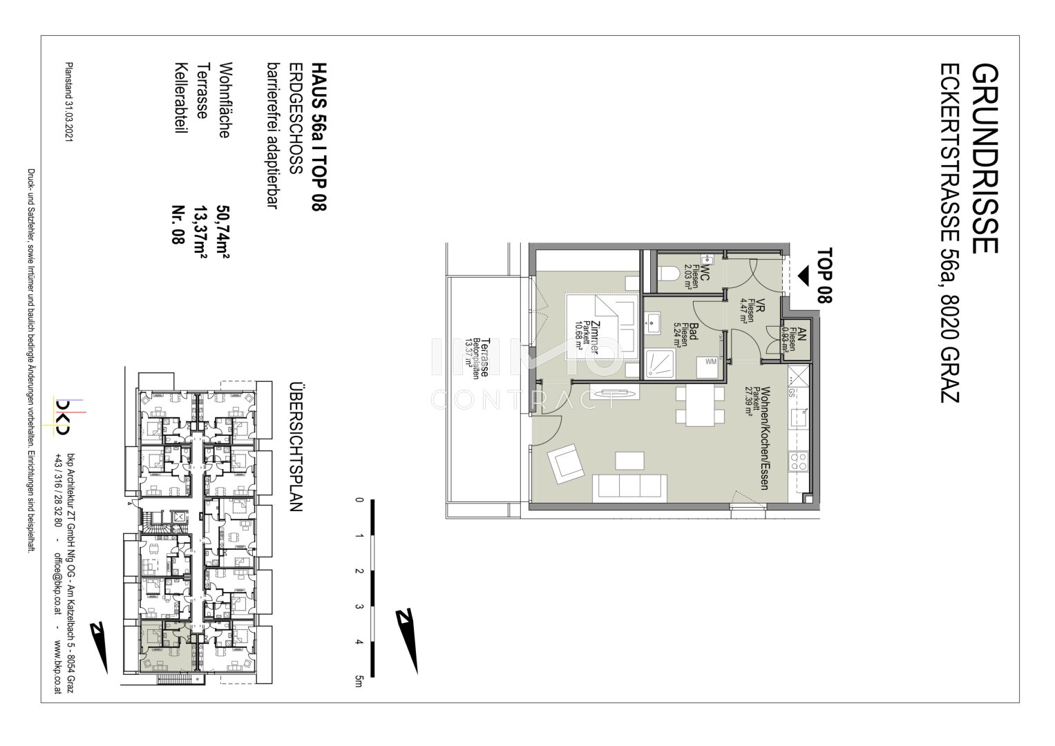
Diese ca. 50,74 m² große 2 Zimmer-Wohnung befindet sich im EG des Hauses Eckertstraße 56a in einem modernen, neuwertigen Wohnhaus.
RAUMAUFTEILUNG: Vorraum, offenen Wohnküche, Schlafzimmer, Bad/Toilette, Abstellnische, Kellerabteil, Terrasse.
AUSSTATTUNG: Die Wohnung ist mit hochwertigen Parkettböden im Wohnbereich sowie mit Fliesenboden im Bad ausgestattet . Das Badezimmer ist unter anderem
Mehr lesen
Objekt ID: 3262772
Preis: € 752.36
Nutzfläche: 51 m2
Gesamtfläche: 0 m2
Ziimmer insgesamt: 2
Schlafzimmer: 2
Badezimmer: 1
Miete (netto) €: 420.47
USt €: 59.13
Gesamtbelastung €: 752.36
Nutzungsart: Wohnen
Provisionspflichtig: nein
Kaution: 3 Bruttomonatsmieten
HWB Klasse: B
FGEE: 0.65
Energieausweis Art: Bedarf
Balkon/Terrassen - Fläche: 13
Beziehbar: ab sofort
Max. Mietdauer: unbefristet
Etage: EG / EG
Einbauküche
Parkett
Dusche
Zentralheizung
Abstellraum
Massiv
Massivbauweise
Ähnliche Objekte
NATURVERBUNDEN: Sonnige 4-Zimmer-Wohnung mit...
€ 1.305.27
4
Schlafzimmer
1
Badezimmer
77 m2
Größe
April 19, 2026















