Erweiterte Suche
Suchagent aktivieren
Exklusive Anzeigen

Café / Bar / Lokal mit Straßenfront an der Neulerchenfelder Straße

€ 189.000,00

Neulerchenfelder Straße, ,

zu Favoriten hinzufügen
teilen
Suchergebnisse

Objektbeschreibung

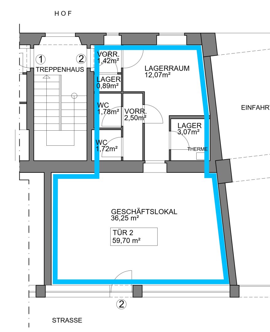
Das Geschäftslokal Top 2 befindet sich im Erdgeschoss und war zuletzt als Bar/Café genutzt und wird mit der bestehenden Einrichtung und Ausstattung verkauft.
Die Lage im Erdgeschoß mit straßenseitiger Ausrichtung bietet hohe Kundenfrequenz und gute Sichtbarkeit.

Adresse: Neulerchenfelder Straße 67, 1160 Wien
Fläche: ca. 59,70 m²

Facts:

*Mehr lesen

Adresse: Neulerchenfelder Straße
Ort:
Bezirk:
Bundesland:
PLZ: 1160
Land: Österreich
Objekt ID: 3282595
Preis: € 189.000
Nutzfläche: 0 m2
Gesamtfläche: 60 m2
Ziimmer insgesamt: 0
Schlafzimmer: 0
Badezimmer: 0
Nutzungsart: Gewerbe
Provisionspflichtig: ja
Provision: 3% des Kaufpreises zzgl. 20% USt.
HWB: 29,50 kWh/(m²*a)
HWB Klasse: B
FGEE: 1.41
Energieausweis Art: Bedarf
Etage: EG
barrierefrei
Neubau

Ähnliche Objekte

vergleichen
Geschäftslokal 1

U1 in 5 Minuten erreichbar – Kurzzeitv...

€ 129.000
1
Schlafzimmer
68 m2
Größe
April 21, 2026
vergleichen
Geschäftslokal 2

U1 in 5 Minuten erreichbar – Kurzzeitv...

€ 195.000
3
Schlafzimmer
108 m2
Größe
April 21, 2026
vergleichen
2jSwfBXzdsDbHMcoudhKuT 1

Studio, Sauna, Freizeiträume, Massage, Büro,...

€ 395.000
5
Schlafzimmer
2
Badezimmer
April 21, 2026

Vergleichen