Objektbeschreibung
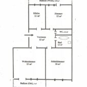
Willkommen in Ihrem neuen Zuhause in Ebenfurth, Niederösterreich – ein gepflegtes Einfamilienhaus, das keine Wünsche offenlässt. Dieses großzügige Schmuckstück mit einer Wohnfläche von 195,15 m² bietet Ihnen und Ihrer Familie viel Platz zum Wohlfühlen und Entspannen.
Das Haus verfügt über 4 helle Zimmer, die sich flexibel nach Ihren Bedürfnissen gestalten
Mehr lesen
Dokumente
Objekt ID: 3282760
Preis: € 669.000
Nutzfläche: 195 m2
Gesamtfläche: 708 m2
Ziimmer insgesamt: 4
Schlafzimmer: 4
Badezimmer: 2
Nutzungsart: Wohnen
Provisionspflichtig: ja
Provision: 3% des Kaufpreises zzgl. 20% USt.
HWB: 76 kWh/(m²*a)
HWB Klasse: C
FGEE: 1.39
E-Ausweis Gültig Bis:: 03.04.2036
Energieausweis Art: Bedarf
Balkon/Terrassen - Fläche: 29
Beziehbar: nach Vereinbarung
WC: 3
Abstellräume: 1
Neubau
Einbauküche
WG-geeignet
Gäste-WC
Parkett
Bad mit Fenster
Kabel/Sat-TV
Kamin
teilmöbliert
Zentralheizung
offene Küche
Abstellraum
Offene Küche
Garage
Massiv
Massivbauweise
Alarmanlage
Räume veränderbar
Holz-Hackschnitzel
Wintergarten
Ähnliche Objekte
⏳ Countdown läuft: Traumhaus jetzt günstiger...
€ 389.000
4
Schlafzimmer
1
Badezimmer
116 m2
Größe
April 17, 2026
ERSTBEZUG Neubau-Doppelhaus Ebenfurth – bela...
€ 389.000
4
Schlafzimmer
1
Badezimmer
116 m2
Größe
April 17, 2026
ERSTBEZUG Neubau-Doppelhaus Ebenfurth – bela...
€ 399.000
4
Schlafzimmer
1
Badezimmer
116 m2
Größe
April 17, 2026


















