Objektbeschreibung
Erstbezug: Schönes 28m² Büro mit Fernwärme im renovierten Altbau!
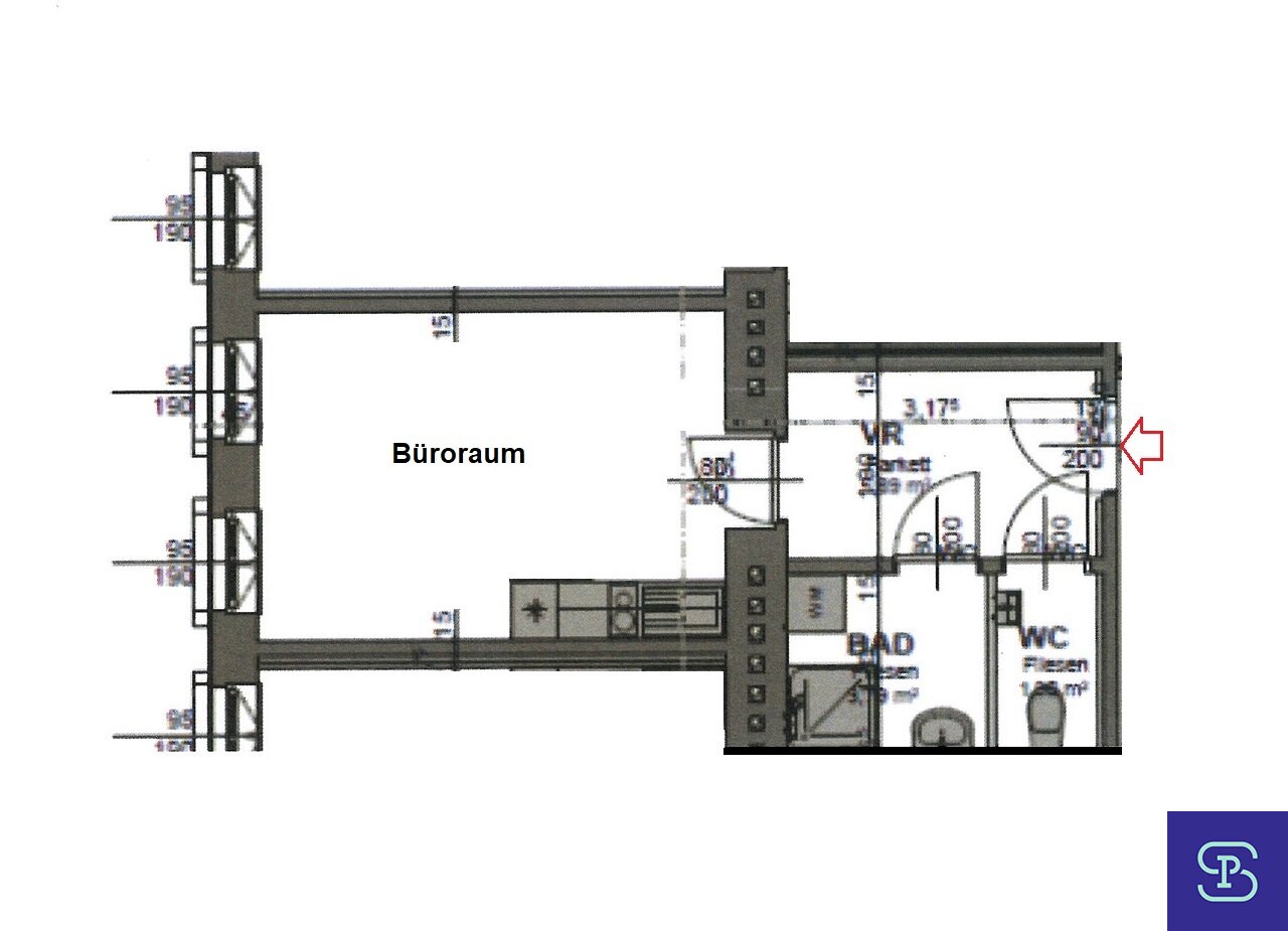
In diesem soeben aufwendig generalsanierten Altbau in ruhiger, zentraler Lage in der Pernerstorfergasse gelangt diese schöne Bürofläche zur Vermietung. Das Mietobjekt befindet sich im 2. Liftstock und besteht aus 1 Büroraum, Vorraum, Badezimmer und WC.
Ausstattung: Renovierter Erstbezug mit Küchenanschlüssen, verfliestem Bad
Mehr lesen
Objekt ID: 3288905
Nutzfläche: 0 m2
Gesamtfläche: 28 m2
Ziimmer insgesamt: 1
Schlafzimmer: 1
Badezimmer: 1
Miete (netto) €: 312
USt €: 73.59
Nutzungsart: Gewerbe
Provisionspflichtig: ja
HWB: 50,30 kWh/(m²*a)
HWB Klasse: C
FGEE: 1.03
E-Ausweis Gültig Bis:: 24.04.2032
Energieausweis Art: Bedarf
Beziehbar: sofort
Etage: 2. Etage / 2. Liftstock
WC: 1
barrierefrei
Altbau
Dusche
Kabel/Sat-TV
Fahrradraum
Dielen
Fernheizung
Fernwärme












