Objektbeschreibung
Zum Verkauf steht eine Wohnung in Tribunj. Dieses charmante Fischerdorf in der Nähe von Vodice und Šibenik zeichnet sich durch sein kristallklares Meer, seine authentische mediterrane Atmosphäre, gepflegte Strände und eine ruhige Umgebung aus – ideal zum Wohnen oder für den Urlaub.
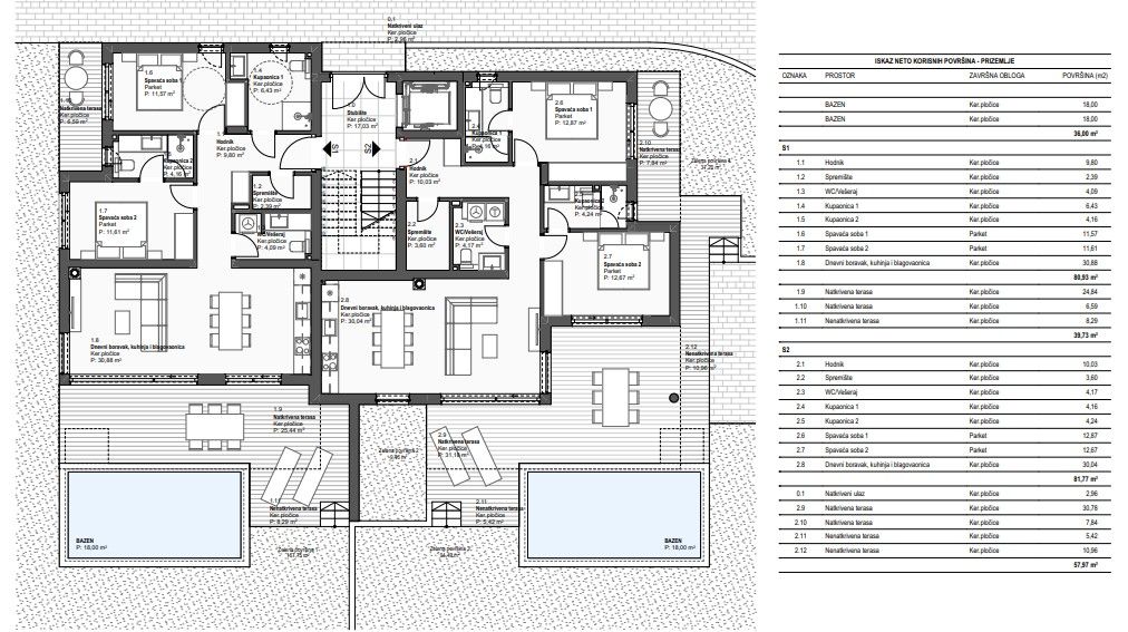
Die Wohnung befindet sich im exklusiven Projekt Tribunj
Mehr lesen
Objekt ID: 3290756
Preis: € 513.324
Nutzfläche: 0 m2
Gesamtfläche: 0 m2
Ziimmer insgesamt: 3
Schlafzimmer: 3
Badezimmer: 2
Nutzungsart: Wohnen
Provisionspflichtig: ja
WC: 1












