Erweiterte Suche
Suchagent aktivieren
Exklusive Anzeigen

Modernes Haus von VODICE mit Swimmingpool in luxuriöser Lage A1

€ 370.000,00

,

4 Zimmer
zu Favoriten hinzufügen
teilen
Suchergebnisse

Objektbeschreibung

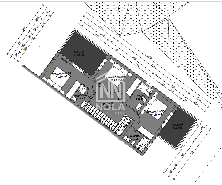
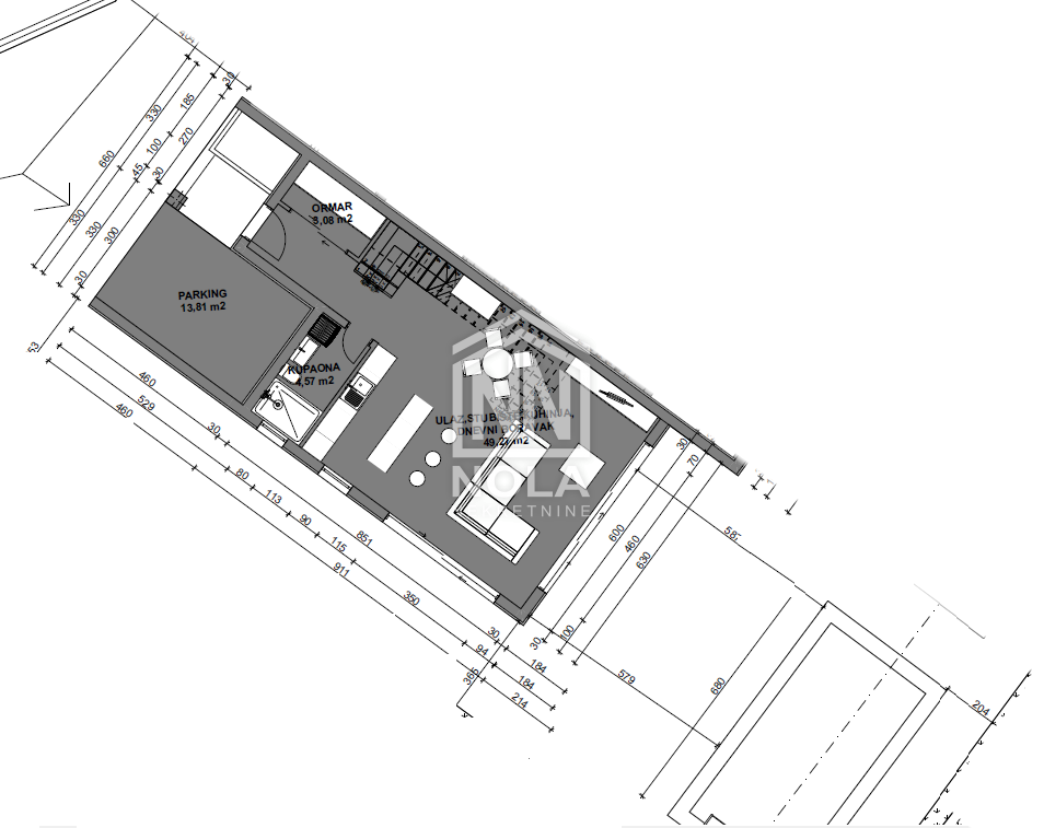
VODICE – MODERNES HAUS MIT POOL IN LUXURIÖSER LAGE (A1)

In einer der begehrtesten Lagen von Vodice, in ruhiger und exklusiver Wohngegend, befindet sich dieses moderne Haus als Teil eines Doppelhauses – die perfekte Kombination aus zeitgenössischer Architektur, höchster Qualität und mediterranem Lebensstil.

Das Projekt entsteht auf einem 620 m²
Mehr lesen

Ort:
Bezirk:
PLZ: 22211
Land: Croatia
Objekt ID: 3294340
Preis: € 370.000
Nutzfläche: 0 m2
Gesamtfläche: 312 m2
Ziimmer insgesamt: 4
Schlafzimmer: 4
Badezimmer: 4
Nutzungsart: Wohnen
Provisionspflichtig: ja

Ähnliche Objekte

vergleichen
1731608669 img 2826

Haus Vrpolje, Šibenik – Okolica, 430,5...

€ 900.000
4
Schlafzimmer
3
Badezimmer
April 23, 2026
vergleichen
1742503674 whatsapp slika 2025 03 20 u 21

Haus Vodice, 185,10m2

€ 550.000
4
Schlafzimmer
4
Badezimmer
April 23, 2026
vergleichen
1742503629 whatsapp slika 2025 03 20 u 21

Haus Vodice, 185,10m2

€ 595.000
6
Schlafzimmer
4
Badezimmer
April 23, 2026

Vergleichen