Erweiterte Suche
Suchagent aktivieren
Exklusive Anzeigen

Einkaufsstraßencharme mit großer Auslage!

€ 650.000,00pro Monat

,

zu Favoriten hinzufügen
teilen
Suchergebnisse

Objektbeschreibung

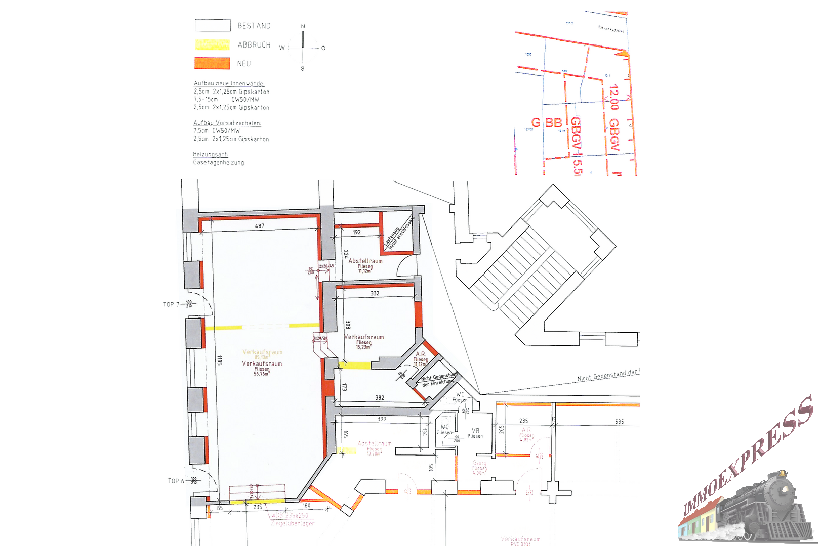
112m² Einkaufsstraßencharme mit großer Auslage!

Zum Verkauf gelangt ein Geschäftslokal mit ca. 84m² Geschäftsfläche (EG) und ca. 27m² Lagerfläche (1.OG) in Wien Meidling. Das Objekt liegt auf der Meidlinger Hauptstraße / Sechtergasse und somit ist für genügend Laufkundschaft gesorgt. Die Immobilie bietet dank der vorhandenen Größe genug Raum für die
Mehr lesen

Ort:
Bezirk:
Bundesland:
PLZ: 1120
Land: Österreich
Objekt ID: 3295828
Preis: € 650.000 pro Monat
Nutzfläche: 0 m2
Gesamtfläche: 0 m2
Ziimmer insgesamt: 0
Schlafzimmer: 0
Badezimmer: 0
Nutzungsart: Anlage
Provision: 3 % zzgl. 20% MwSt. vom Gesamtkaufpreis
HWB: 227,80 kWh/(m²*a)
HWB Klasse: F
FGEE: 2.64
Beziehbar: ab sofort
Gas
vollerschlossen

Ähnliche Objekte

vergleichen
1

Eckzinshaus mit Potenzial im 17. Bezirk – 21...

€ 3.000.000 pro Monat
1.200 m2
Größe
April 22, 2026
vergleichen
IMG_97866

Zinshaus mit bewilligtem Dachgeschoß-Zubau &...

€ 2.750.000 pro Monat
531 m2
Größe
April 22, 2026
vergleichen
IMG-20210626-WA0011

NEU! Dachgeschoß-TRAUM mit toller Aussicht! ...

€ 1.299.000 pro Monat
560 m2
Größe
April 22, 2026

Vergleichen