Objektbeschreibung
Marina, Neubau, erste Reihe zum Meer. Das Gebäude verfügt über insgesamt 3 Etagen: Erdgeschoss, erster und zweiter Stock, wobei sich auf jeder Etage jeweils eine Wohnung befindet.
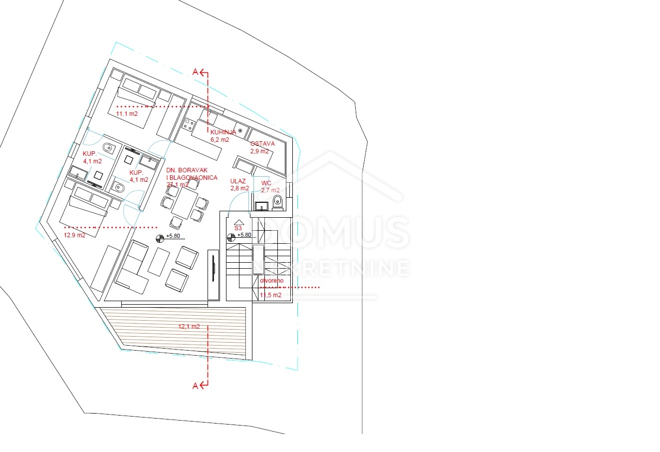
Die Wohnung S3 ist eine Zweizimmerwohnung im zweiten Stock mit modernem Design und funktionaler Raumaufteilung, mit einer gesamten Nutzfläche von 95,60 m²
Mehr lesen
Objekt ID: 3302557
Preis: € 1
Nutzfläche: 0 m2
Gesamtfläche: 0 m2
Ziimmer insgesamt: 3
Schlafzimmer: 3
Badezimmer: 2
Nutzungsart: Wohnen
WC: 1










