Objektbeschreibung
Willkommen in der malerischen Region rund um den Falkertsee in Kärnten, wo sich eine außergewöhnliche Gelegenheit für Investoren und Bauherren bietet!
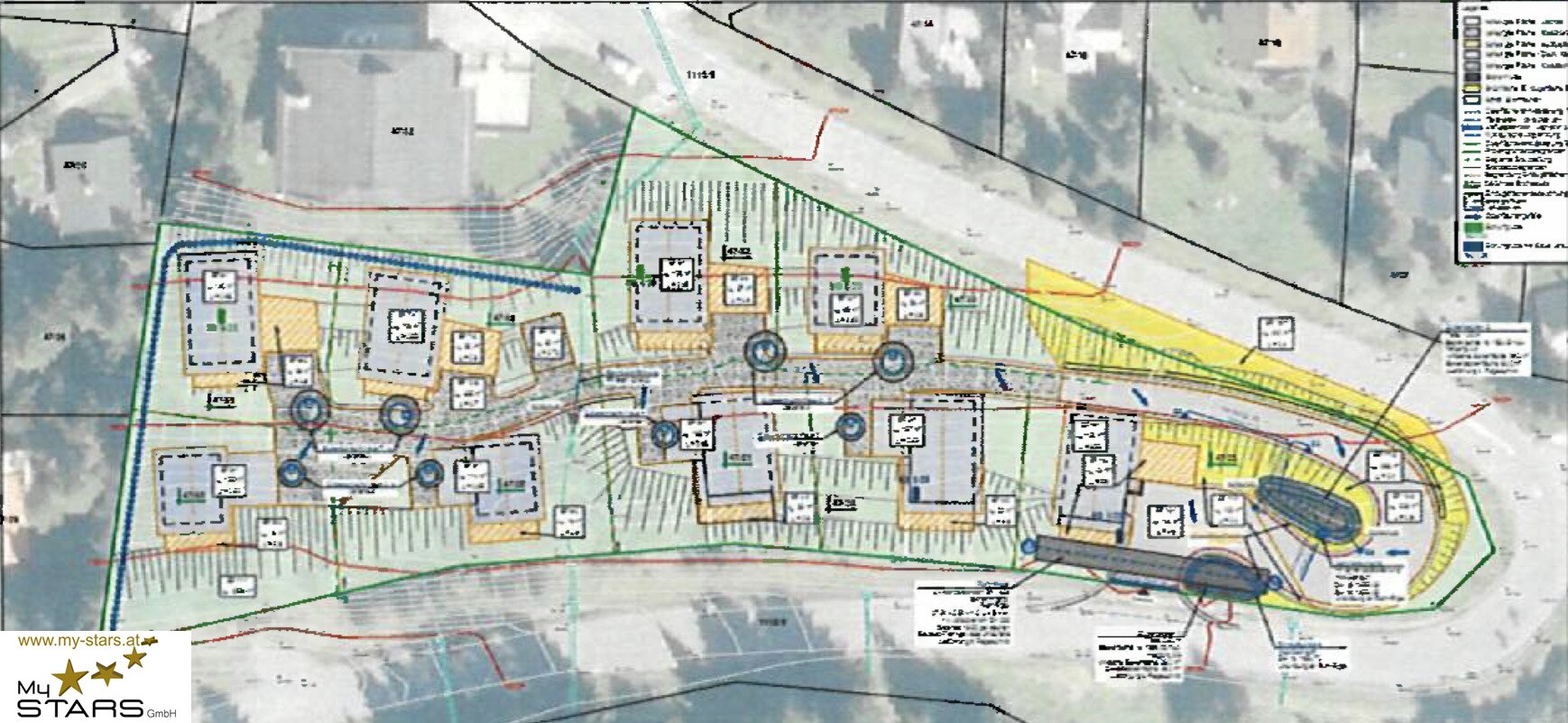
Zum Verkauf gelangt ein zusammenhängendes Grundstückspaket mit ca. 5.632 m²:
Gesamtfläche in absoluter Toplage am Falkertsee in der Gemeinde Reichenau, Kärnten.
Gegenstand des Verkaufs ist ausschließlich das Grundstück samt
Mehr lesen
Objekt ID: 3321684
Preis: € 1.600.000
Nutzfläche: 0 m2
Gesamtfläche: 5.631 m2
Ziimmer insgesamt: 0
Schlafzimmer: 0
Badezimmer: 0
Miete/m2 €: 284.14
Nutzungsart: Anlage
Provisionspflichtig: ja
Provision: 3% des Kaufpreises zzgl. 20% USt.











