Objektbeschreibung
Im Herzen von Hohenems: Stilvolle 3-Zimmerwohnung mit Balkon
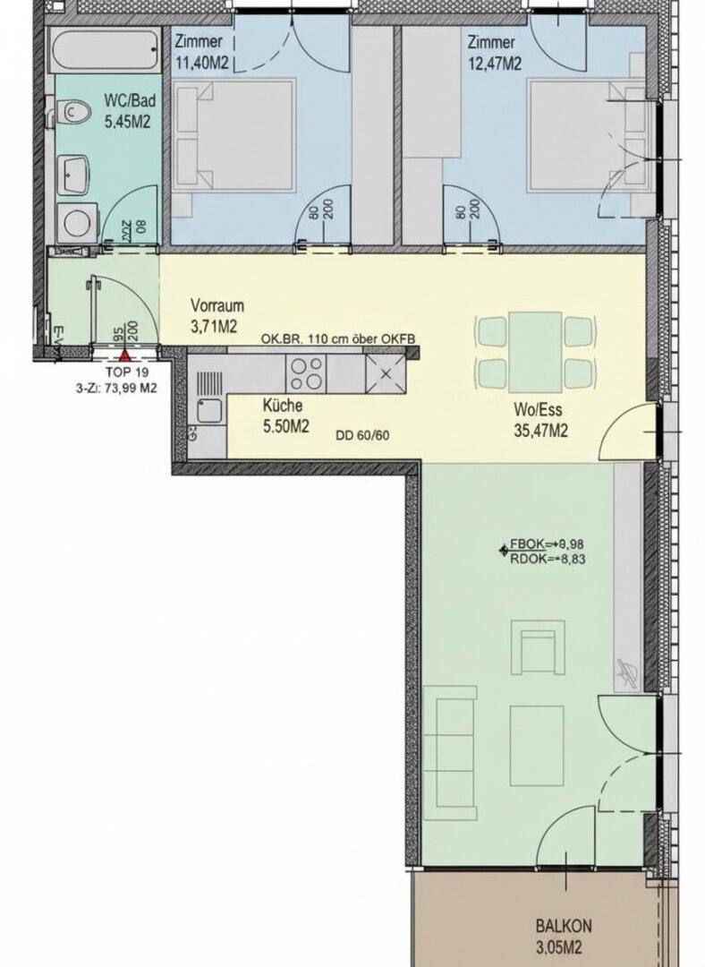
In der Schweizer Straße 33 in Hohenems erwartet Sie diese stilvolle 3-Zimmerwohnung mit rund 73,99 m² Wohnfläche, die durch ihre zentrale Lage und ein angenehmes Wohnambiente überzeugt. Nur wenige Schritte vom Schlossplatz entfernt, genießen Sie hier urbanes Wohnen mit besonderem Flair. Der offen
Mehr lesen
Adresse: Schweizer Straße 33
Ort: Hohenems
Bezirk: 6845
Bundesland: Vorarlberg
PLZ: 6845
Land: Österreich
Objekt ID: 3330692
Preis: € 1.471
Nutzfläche: 74 m2
Gesamtfläche: 0 m2
Ziimmer insgesamt: 3
Schlafzimmer: 3
Badezimmer: 1
Miete (netto) €: 1471
Gesamtbelastung €: 1471
Nutzungsart: Wohnen
Provisionspflichtig: nein
HWB: 30 kWh/(m²*a)
HWB Klasse: B
FGEE: 0.85
Energieausweis Art: Bedarf
Anzahl Balkone: 1
Balkon/Terrassen - Fläche: 5
Beziehbar: 01. Juli 2026
Etage: 3. Etage
WC: 1
Balkon
Einbauküche
Personenaufzug
Parkett
Badewanne
Fußbodenheizung
Kabel/Sat-TV
offene Küche
Offene Küche
Massiv
Massivbauweise
Fernwärme
Tiefgarage
Flachdach












