Objektbeschreibung
Wohnen nahe dem größten innerstädtischen Markt dem ‚Naschmarkt‘!
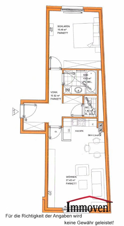
Die 2-Zimmerwohnung befindet sich im 2. Obergeschoss (Liftvorhanden) und bietet eine Nutzfläche von ca. 60 m².
Raumaufteilung:
– Wohnküche
-1 Zimmer
– Bad mit Wanne
– Toilette mit Handwaschbecken
– Vorraum
Die Wohnung befindet sich in einer
Mehr lesen
Dokumente
Objekt ID: 3333170
Preis: € 1.317.94
Nutzfläche: 0 m2
Gesamtfläche: 60 m2
Ziimmer insgesamt: 2
Schlafzimmer: 2
Badezimmer: 1
Miete (netto) €: 1041.56
USt €: 119.82
Gesamtbelastung €: 1317.94
Nutzungsart: Wohnen
Provisionspflichtig: nein
Kaution: 3 Bruttomonatsmieten
HWB: 37,50 kWh/(m²*a)
HWB Klasse: B
FGEE: 0.96
E-Ausweis Gültig Bis:: 09.11.2030
Energieausweis Art: Bedarf
Beziehbar: 01.06.2026
Etage: 2. Etage
WC: 1
barrierefrei
Neubau
Personenaufzug
Gas
Parkett
Badewanne
Zentralheizung
offene Küche
Offene Küche
Garage
Ähnliche Objekte
Residieren wie im Schloss: historische 4-Zim...
€ 2.996
4
Schlafzimmer
1
Badezimmer
200 m2
Größe
April 27, 2026













