Objektbeschreibung
STABILE EINNAHMEN: KURZ- & LANGZEITVERMIETUNG IN EINEM INVESTMENT!
Das Projekt Senefeldergasse 35 bietet 18 hochwertig sanierte Wohnungen in einem stilvollen Altbau, der historischen Charme mit modernem Wohnkomfort verbindet. Ein Großteil der Einheiten verfügt über attraktive Außenflächen wie Balkone oder Terrassen.
Sie erwerben eine Anlegerwohnung im Eigentum und erhalten Mieteinnahmen aus:
Objekt ID: 3337324
Preis: € 182.000
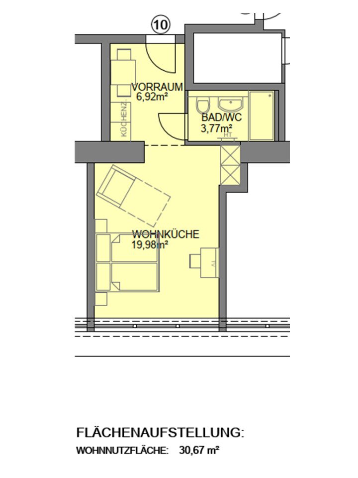
Nutzfläche: 31 m2
Gesamtfläche: 31 m2
Ziimmer insgesamt: 1
Schlafzimmer: 1
Badezimmer: 1
Nutzungsart: Anlage
Provisionspflichtig: ja
Provision: 3% des Kaufpreises zzgl. 20% USt.
HWB: 31,43 kWh/(m²*a)
HWB Klasse: B
FGEE: 0.77
E-Ausweis Gültig Bis:: 14.12.2029
Energieausweis Art: Bedarf
Etage: 3. Etage
vollmöbliert
Einbauküche
Personenaufzug
Parkett
Dusche
Fußbodenheizung
Fernwärme
Ähnliche Objekte
NEU | Exklusive Aktion – Küche inklusive | J...
€ 349.000
2
Schlafzimmer
1
Badezimmer
48 m2
Größe
April 28, 2026
NEU | Exklusive Aktion – Küche inklusive | J...
€ 309.000
2
Schlafzimmer
1
Badezimmer
43 m2
Größe
April 28, 2026










