Objektbeschreibung
PROJEKTBESCHREIBUNG
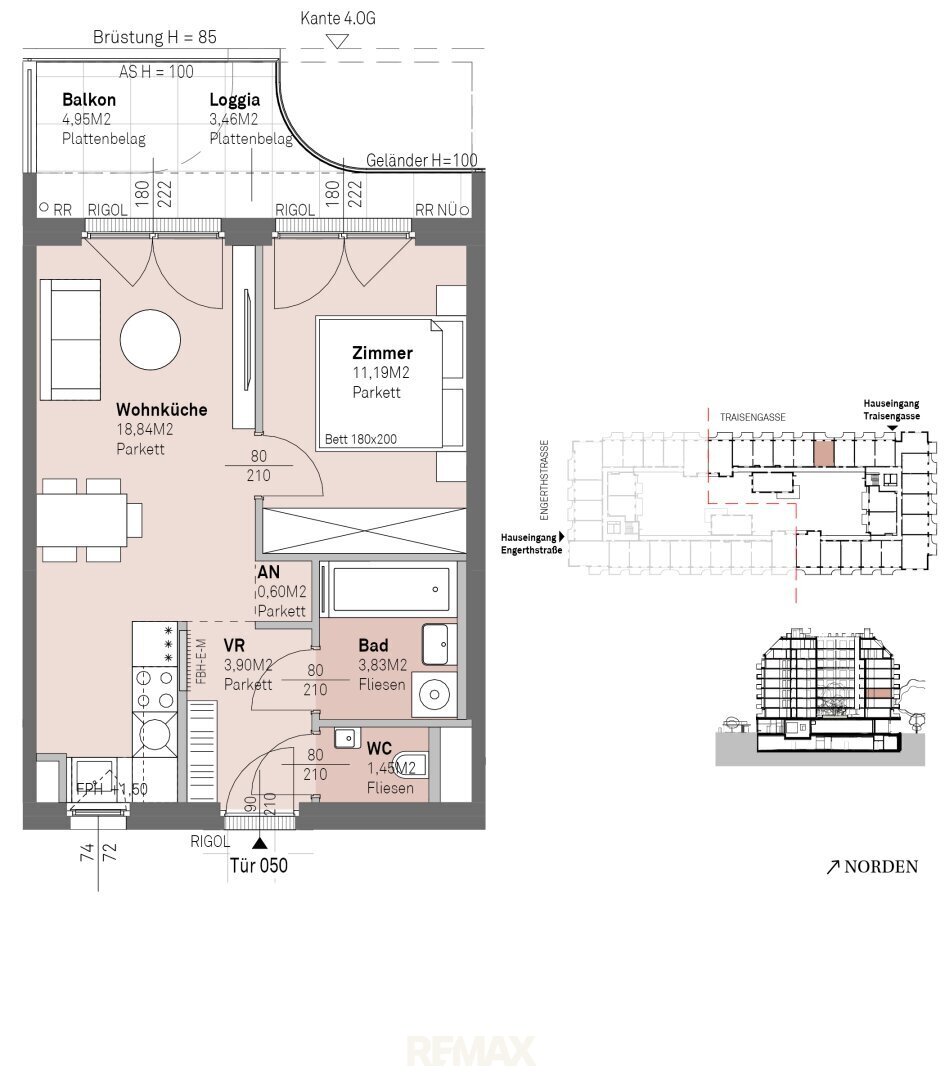
Die Traisengasse ist ein modernes Wohnprojekt, das viele kompakte Kleinwohnungen, aber auch großzügige Familienwohnungen bietet. Die Anlegerwohnungen verteilen sich auf sechs Regel- und zwei Dachgeschosse. Hochwertige Materialien, nachhaltige Bauweise und energieeffiziente Technik sorgen für ein angenehmes Wohnklima. Die Wohnungen sind optimal ausgerichtet, bieten viel Tageslicht und Ausblicke auf
Mehr lesen
Objekt ID: 3342640
Preis: € 204.600
Nutzfläche: 0 m2
Gesamtfläche: 0 m2
Ziimmer insgesamt: 0
Schlafzimmer: 0
Badezimmer: 0
Nutzungsart: Wohnen
Provisionspflichtig: ja
Provision: 3% des Kaufpreises zzgl. 20% USt.
HWB: 26,80 kWh/(m²*a)
HWB Klasse: B
FGEE: 0.74
E-Ausweis Gültig Bis:: 28.05.2034
Energieausweis Art: Bedarf
Ähnliche Objekte
Charmante 3-Zimmer Hofwohnung mit Terrasse &...
€ 321.712.84
3
Schlafzimmer
1
Badezimmer
59 m2
Größe
April 29, 2026
Schöne 3-Zimmer Hofwohnung mit Weitblick ...
€ 376.755.96
3
Schlafzimmer
1
Badezimmer
59 m2
Größe
April 29, 2026










