Erweiterte Suche
Suchagent aktivieren
Exklusive Anzeigen

IDEALE GESCHÄFTSFLÄCHE – MAJA LIVING – EINE UNVERWECHSELBARE PERLE! U-BAHN VOR DER TÜRE!

,

148.844 Zimmer
zu Favoriten hinzufügen
teilen
Suchergebnisse

Objektbeschreibung

In unmittelbarer Nähe des Hauptbahnhofes und nur eine Minute von der U1-Station Keplerplatz entfernt, gelangt ein exklusives Geschäftslokal mit angrenzender Wohnung zur Vermietung. 

MAJA setzt auf eine moderne und effiziente Raumgestaltung, ohne dabei Kompromisse bei der gehobenen Qualität einzugehen. Jede Einheit verfügt über eine eigene Freifläche, zudem stehen ein Fahrradraum sowie zugewiesene Kellerabteile zur Verfügung.

 

Highlights:

* Freiflächen 
* Kellerabteil inkl. Stromanschluss Mehr lesen

Ort:
Bezirk:
Bundesland:
PLZ: 1100
Land: Österreich
Objekt ID: 3356440
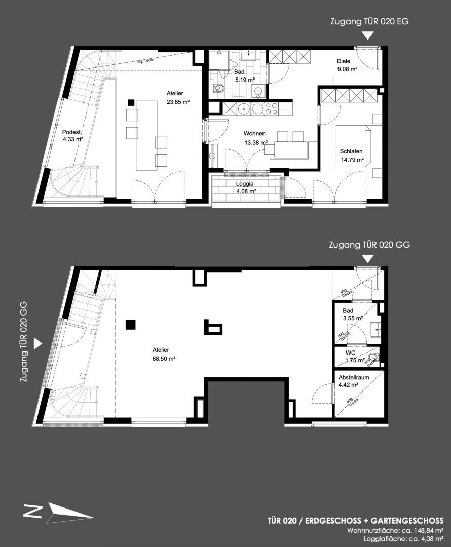
Nutzfläche: 149 m2
Gesamtfläche: 153 m2
Ziimmer insgesamt: 4
Schlafzimmer: 4
Badezimmer: 2
Miete (netto) €: 2147
Betriebskosten €: 433.35
Nutzungsart: Gewerbe
Provisionspflichtig: ja
Kaution: 3 Bruttomonatsmieten
HWB: 21,60 kWh/(m²*a)
HWB Klasse: B
FGEE: 0.75
E-Ausweis Gültig Bis:: 24.01.2034
Energieausweis Art: Bedarf
Balkon/Terrassen - Fläche: 4
Beziehbar: sofort
Etage: EG / Erdgeschoss
WC: 2
Abstellräume: 1
Neubau
Personenaufzug
Gäste-WC
Dusche
Fußbodenheizung
Kabel/Sat-TV
offene Küche
Abstellraum
Offene Küche
Rollläden
rollstuhlgerecht
vollerschlossen
Estrich
Fernwärme
schlüsselfertig mit Keller
seniorengerecht

Ähnliche Objekte

vergleichen
5UFiCnGuDW0uluPcbwe5oR

++NEU++ Porzellangasse, Bestlage im Serviten...

3
Schlafzimmer
1
Badezimmer
129 m2
Größe
April 30, 2026
vergleichen
7djM52PjdQjBG4gsJEKpr1 2

IDEALE GESCHÄFTSFLÄCHE – MAJA LIVING &...

4
Schlafzimmer
2
Badezimmer
149 m2
Größe
April 30, 2026
vergleichen
7djM52PjdQjBG4gsJEKpr1 1

IDEALE GESCHÄFTSFLÄCHE – MAJA LIVING &...

4
Schlafzimmer
2
Badezimmer
149 m2
Größe
April 30, 2026

Vergleichen