Objektbeschreibung
In unmittelbarer Nähe des Hauptbahnhofes und nur eine Minute von der U1-Station Keplerplatz entfernt, gelangt ein exklusives Geschäftslokal mit angrenzender Wohnung zur Vermietung.
MAJA setzt auf eine moderne und effiziente Raumgestaltung, ohne dabei Kompromisse bei der gehobenen Qualität einzugehen. Jede Einheit verfügt über eine eigene Freifläche, zudem stehen ein Fahrradraum sowie zugewiesene Kellerabteile zur Verfügung.
Highlights:
* Freiflächen
* Kellerabteil inkl. Stromanschluss
Mehr lesen
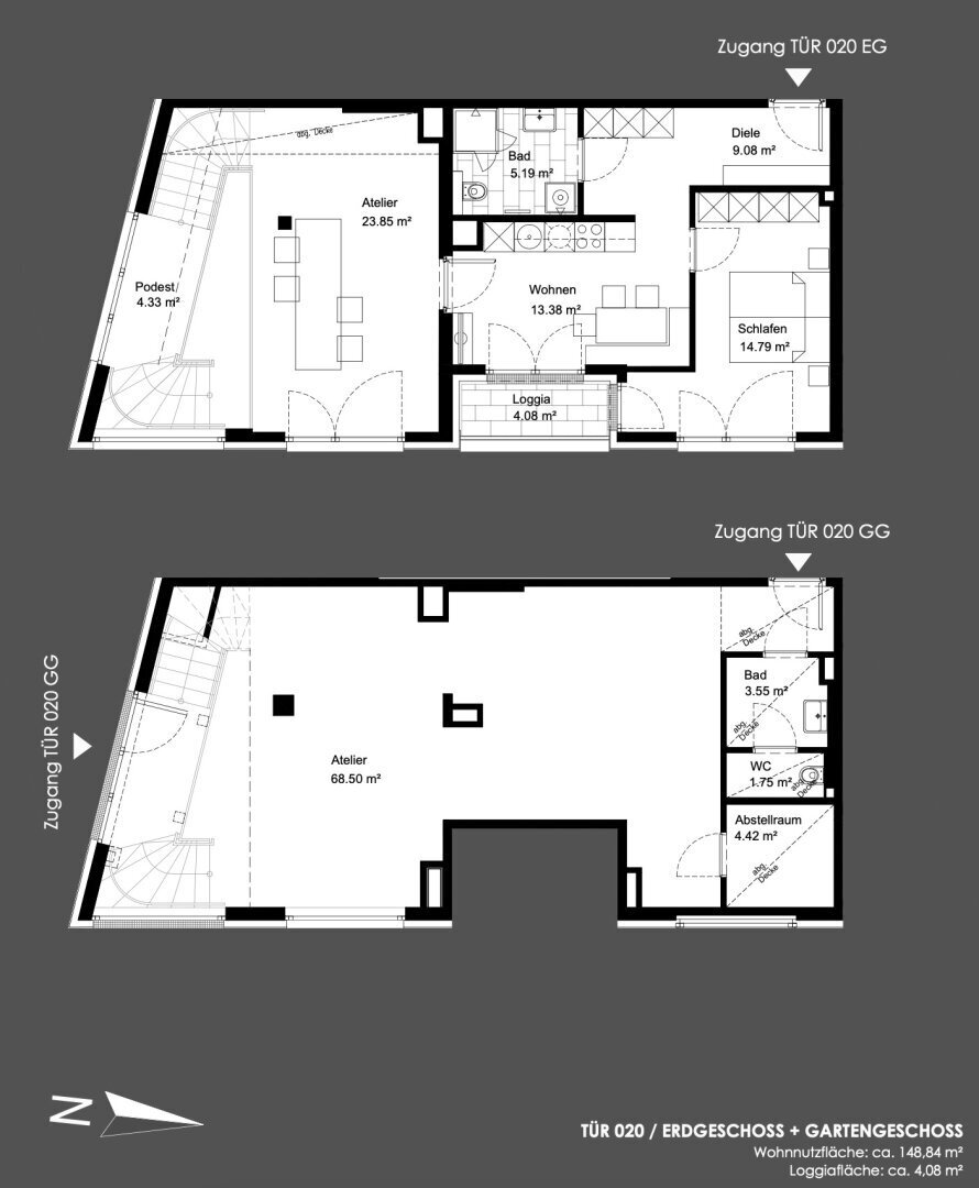
Objekt ID: 3356472
Nutzfläche: 149 m2
Gesamtfläche: 153 m2
Ziimmer insgesamt: 4
Schlafzimmer: 4
Badezimmer: 2
Miete (netto) €: 2147
Betriebskosten €: 433.35
Nutzungsart: Gewerbe
Provisionspflichtig: ja
Kaution: 3 Bruttomonatsmieten
HWB: 21,60 kWh/(m²*a)
HWB Klasse: B
FGEE: 0.75
E-Ausweis Gültig Bis:: 24.01.2034
Energieausweis Art: Bedarf
Balkon/Terrassen - Fläche: 4
Beziehbar: sofort
Etage: EG / Erdgeschoss
WC: 2
Abstellräume: 1
Neubau
Personenaufzug
Gäste-WC
Dusche
Fußbodenheizung
Kabel/Sat-TV
offene Küche
Abstellraum
Offene Küche
Rollläden
rollstuhlgerecht
vollerschlossen
Estrich
Fernwärme
schlüsselfertig mit Keller
seniorengerecht


















